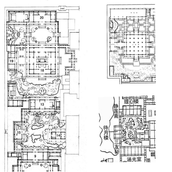
乾隆花园平面图

2-乾隆花园平面图
图片尺寸640x1838
【四月沙龙】北京.第32期 虚以待君王 -- 邂逅你的乾隆花园
图片尺寸435x871
故宫乾隆花园讲解中心将在明年完工,由纽约事务所负责
图片尺寸1080x2736
故宫乾隆花园的五重天地
图片尺寸1004x1206
乾隆小花园镜清斋之由表及里的详细解析
图片尺寸1280x1086
《乾隆宝薮》俯瞰故宫宁寿宫花园整体,会看到"花园中延绵着一条惊人的
图片尺寸1080x3772
乾隆最爱的小花园在北海公园
图片尺寸1080x944
乾隆归政后居所的壁画真绝了!原来照抄了郎世宁所绘的丹顶鹤
图片尺寸640x888
如何评价乾隆花园的设计
图片尺寸553x553
我要去故宫之探秘乾隆花园,清代完美佳作里,潜藏着深厚的这三点
图片尺寸640x677
乾隆花园和唐顿庄园:皇家建筑和园林布局,乾隆是有情怀的设计师
图片尺寸640x480
《中国古典园林史》p486-p489景观布局建福宫花园建于清乾隆五年(1740
图片尺寸720x1440
故宫博物院丨数字化视野下的乾隆花园
图片尺寸640x470
园林平面图赏析【2乾隆花园平面图】南北方经典中国园林平面图赏析【2
图片尺寸568x1280
故宫里有个神秘莫测"后院",关闭近百年后2020年完全开放_花园
图片尺寸1422x984
皇家园林的最高水平——乾隆花园从宫廷珍宝看了不起的中华文化
图片尺寸1080x484
紫禁城宁寿宫平面图.宁寿宫可称为"宫中之宫".
图片尺寸187x450
乾隆小花园镜清斋之由表及里的详细解析
图片尺寸1085x519
符望阁在乾隆花园中地理位置标示
图片尺寸475x2000
乾隆花园第一进 微故宫
图片尺寸640x1096