人防悬板图

防火板挡烟垂壁图片
图片尺寸1024x960
人防门框墙悬板活门框
图片尺寸611x817
每日联系人防门框墙悬板活门
图片尺寸629x415
走进现场人防现场施工图
图片尺寸660x836
人防中关于悬板活门
图片尺寸689x538
请问这个悬板活门怎么设置用人防门框墙画吗找不到合适的参数洞口多少
图片尺寸460x662
固定式防火板挡烟垂壁
图片尺寸1280x1280
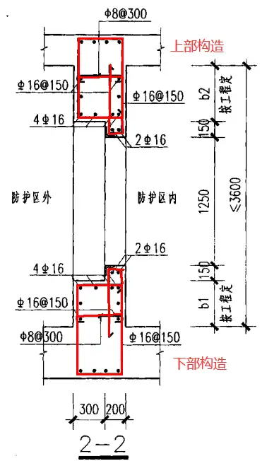
人防地下室这个悬板活门门框墙xhk剖面图中的详建筑这个高度具体是指
图片尺寸1866x993
防火板挡烟垂壁 固定式刚性挡烟垂壁 低价直销 3c认证 消防认可
图片尺寸1280x1280
每日联系人防门框墙悬板活门
图片尺寸371x652
北京钢结构钢梁防火包覆防火板厂家,钢柱包覆防火板,钢结构包覆防火板
图片尺寸912x912
防火板硅酸盐板挡烟垂壁固定柔性钢制挡烟垂壁资质可接工程
图片尺寸750x750
防火板挡烟垂壁 固定式刚性挡烟垂壁 低价直销 3c认证 消防认可
图片尺寸1280x960
陕西人防通风--人防门悬板式防爆波活门
图片尺寸311x455
悬臂板和悬挑板有区别吗具体说明区别
图片尺寸208x229
人防门框墙
图片尺寸1000x750
这种悬板活门式人防门框墙怎么自理
图片尺寸346x569
请问这个悬板活门怎么设置用人防门框墙画吗找不到合适的参数洞口多少
图片尺寸790x536
人防工程概念,分类及细部解析
图片尺寸500x253
人防工程结构做法图解全套人防工程必备基础知识
图片尺寸960x663