仟佰墅设计图纸

华地·仟佰墅 151㎡ 现代简约装修设计理念
图片尺寸4705x3327
华地仟佰墅中式风格装修效果图实景图
图片尺寸3040x2628
亿元豪宅千平别墅案例欣赏
图片尺寸4962x4028
华地仟佰墅三室两厅精装修
图片尺寸382x600
华地仟佰墅
图片尺寸600x600
华地仟佰墅
图片尺寸600x600
泰安华地仟佰墅怎么样户型图与本月均价走势
图片尺寸848x1400
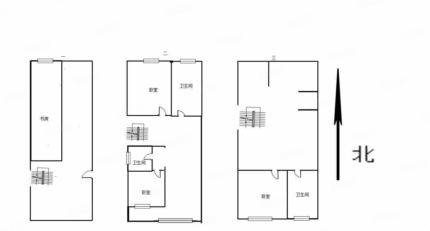
华地仟佰墅上叠套三毛坯近运动公园
图片尺寸1409x759
500平米现代中式独栋别墅,抹不掉的东方情怀
图片尺寸1080x910
华地仟佰墅
图片尺寸400x600
华地仟佰墅
图片尺寸400x600
免费获取报价 免费获取户型设计 华地仟佰墅新中式餐厅效果图 客厅
图片尺寸1050x750
华地仟佰墅
图片尺寸400x600
泰安泰安华地仟佰墅怎么样楼盘户型图大全及价格走势解析
图片尺寸933x1400
210平米别墅现代简约家装装修图片设计-青岛齐装网装修效果图
图片尺寸466x377
对称型新中式别墅,14米×13.
图片尺寸1182x1280
1200平独栋别墅 - 别墅豪宅 - 第4页 - 赵刘琦设计作品案例
图片尺寸3936x3396
占地11x18三层带车库露台自建别墅设计全套施工图
图片尺寸1120x1600
现代中式别墅600平米252万_保利西山林语别墅装修案例-上海房天下家居
图片尺寸6016x4290
现代-003|现代风格方案|匠品宅造,乡村美学别墅引领者
图片尺寸747x970