倒虹吸图纸

技术求助:关于倒虹吸
图片尺寸579x450
第六节 渠系建筑物-倒虹吸管
图片尺寸711x482
某渠道穿公路倒虹吸管施工设计图纸
图片尺寸1440x1020
什么是倒虹吸原理
图片尺寸605x396
倒虹吸管设计图下载(140.22 kb,dwg格式) 机械cad图纸
图片尺寸555x423
倒虹吸
图片尺寸560x420
倒虹吸排水示意
图片尺寸560x420
倒虹吸设计图纸
图片尺寸280x404
倒虹吸
图片尺寸560x403
水利工程倒虹吸细部结构设计图
图片尺寸921x656
本图纸为某倒虹吸管道设计cad施工图(含设计说明);包括:设计说明,闸槽
图片尺寸610x861
倒虹吸管
图片尺寸856x515
某倒虹吸施工图免费下载 - 环保图纸 - 土木工程网
图片尺寸368x269
竖井式倒虹吸管
图片尺寸1365x863
倒虹吸工程
图片尺寸694x499
小型农田水利工程倒虹吸设计施工图_cad图库 【建库图纸】
图片尺寸800x602
倒虹吸是怎样的原理?最好示例图
图片尺寸351x307
桥式倒虹吸管
图片尺寸1417x638
倒虹吸工程
图片尺寸703x523
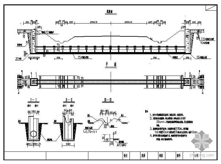
缓坡式倒虹吸平剖面设计图纸
图片尺寸1083x742