党家村平面图

党家村
图片尺寸780x553
党家村
图片尺寸1080x810
党家村的j建筑保护与发展思考
图片尺寸522x441
走进中国传统村落之:陕西省渭南市党家村
图片尺寸640x480
党家村地图
图片尺寸359x318
党群服务中心
图片尺寸1280x1097
湖东街道党群服务中心
图片尺寸1280x905
【岳阳张谷英村】江南第一村
图片尺寸1215x912
实力圈粉这样的党群阵地慕了慕了
图片尺寸1080x830
小南海镇龙丰村党群服务综合楼项目设计方案公告
图片尺寸1600x1131
村一级的党群便民服务中心之一层平面功能 - 抖音
图片尺寸4848x3394
党家村是中国历史文化名村,也是我国北方民居的典型代表.
图片尺寸677x1241
同盟古镇(袁家村)
图片尺寸2667x2000
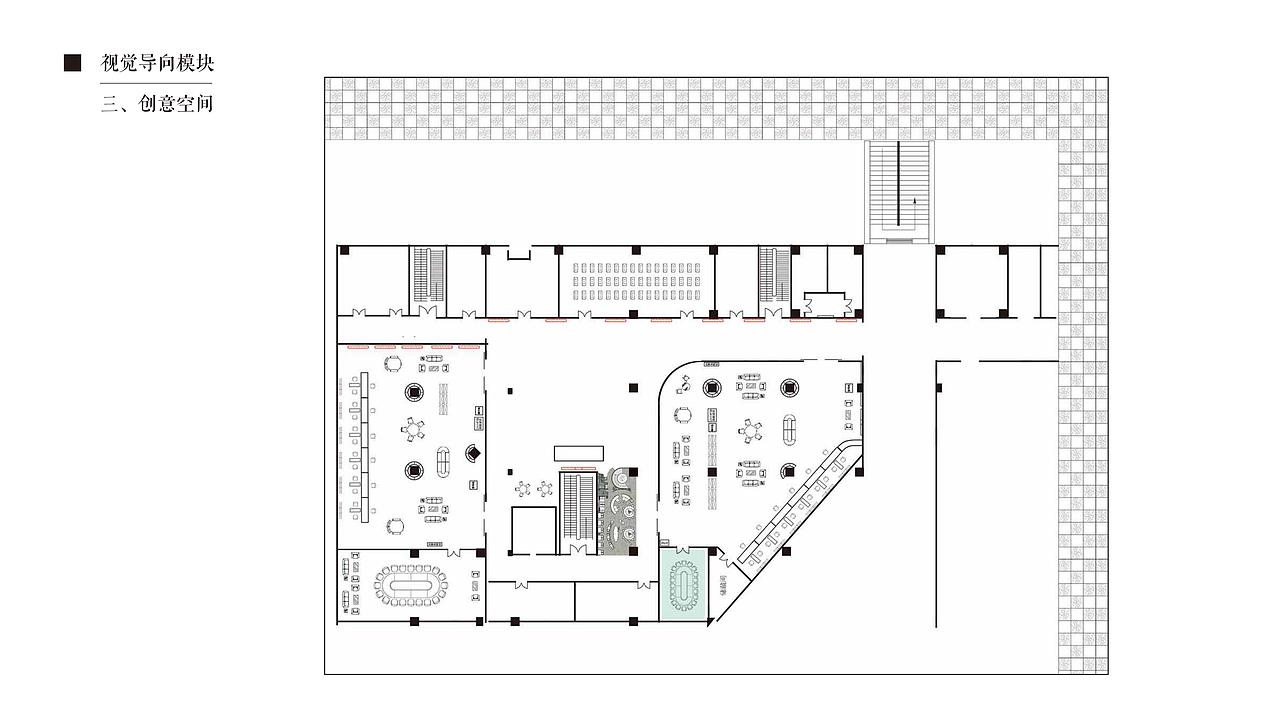
党群服务中心|平面|其他平面|pureman_原创作品-站酷zcool
图片尺寸1280x720
幸福驿站——党群服务中心
图片尺寸1280x768
39_02_首层平面图_1f_plan.jpg
图片尺寸1629x1920
西安袁家村,一站式体验关中民俗文化的好地方
图片尺寸640x431
信息图表|平面|信息图表|zinq - 临摹作品 - 站酷 (zcool)
图片尺寸1280x905
邮电大学党群服务中心策划提案
图片尺寸1280x720
社区党群服务与康乐活动中心改造|空间|展陈设计|总督
图片尺寸1280x955