六层楼房设计图

某六层住宅户型设计图
图片尺寸610x432
六层洋房户型平面图
图片尺寸595x656
8米 六层城镇自建房临街楼房两间商铺楼房建筑平面图户型图方案图纸
图片尺寸860x1199
13x12米多兄弟6层农村别墅设计
图片尺寸860x533
建一栋最高端大方最牛的的欧式六层别墅,人人都羡慕又夸好.
图片尺寸970x546
农村六层房屋设计图,传说中的高端大气上档次!
图片尺寸650x812
带挑空客厅设计的六层别墅,这才是真豪宅,建好就是地标
图片尺寸640x501
农村六层房屋设计图,传说中的高端大气上档次!
图片尺寸650x812
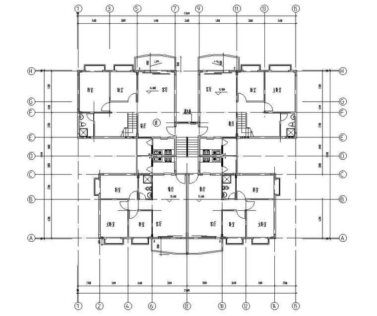
多层住宅户型设计图
图片尺寸760x637
超霸气的六层中式风格别墅,内带电梯,声势浩大,成功人士的标配
图片尺寸640x649
梅园三期七层住宅楼(3#,4#)六层复式上层平面图
图片尺寸800x420
六层6912平米华能办公楼设计建筑图结构图
图片尺寸1825x978
建筑面积约300㎡ 六房两厅三卫
图片尺寸797x999
六层办公楼建筑设计方案cad图纸
图片尺寸610x432
超霸气的六层中式风格别墅,内带电梯,声势浩大,成功人士的标配
图片尺寸640x649
某六层住宅户型设计图
图片尺寸610x432
266平米南北通透,动静分明的宜居型六房大平层
图片尺寸550x477
326平米的六房三厅豪华大平层,你爱了么
图片尺寸588x553
3x12 六层半农村自建房临街楼房街边联排楼房施工图效果图带夹层
图片尺寸3750x2700
框架结构六层办公楼cad施工方案图纸
图片尺寸610x432