叠水设计平面图

某大型生态叠水景观水池施工图套图
图片尺寸610x861
某大型生态叠水景观水池施工图套图
图片尺寸610x432
大门入口叠水详图
图片尺寸402x594
某大型生态叠水景观水池施工图套图
图片尺寸610x432
某地景观广场叠水设计全套施工图纸
图片尺寸610x432![[图块/节点]某小区叠水施工详图](https://i.ecywang.com/upload/1/img1.baidu.com/it/u=697774795,3548961379&fm=253&fmt=auto&app=138&f=JPEG?w=761&h=500)
[图块/节点]某小区叠水施工详图
图片尺寸1073x705
某小区的欧式三层花钵叠水详细施工图
图片尺寸1440x1020
某后庭院假山叠水作法cad图纸
图片尺寸610x432
叠水 施工图
图片尺寸708x341
小溪叠水平面图
图片尺寸820x476
某地园林景观叠水水池基础设计图纸
图片尺寸610x432
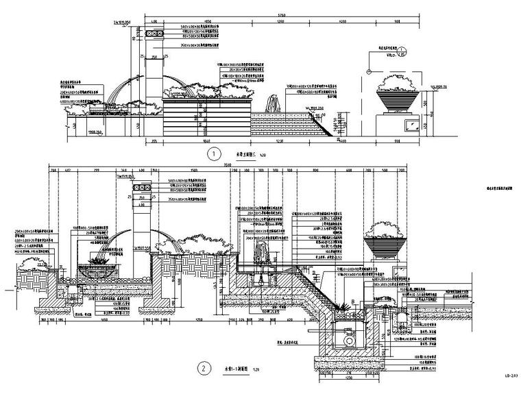
叠水水景节点详图设计
图片尺寸760x575
叠水水景节点详图设计
图片尺寸760x649
花岗岩叠水景观大样图:包括跌水景观的平面图,立面图,剖面图,堡坎栏杆
图片尺寸610x432
园林小品九泉叠水施工图图片
图片尺寸650x420
惠州北站中海汤泉别墅叠墅温泉入户131141m05户型图房价价格介绍
图片尺寸1080x1541![叠泉水池设计cad平面图纸[原创]](https://i.ecywang.com/upload/1/img0.baidu.com/it/u=1420520688,2320353757&fm=253&fmt=auto&app=138&f=JPEG?w=700&h=499)
叠泉水池设计cad平面图纸[原创]
图片尺寸700x499
叠水睡莲池施工大样图
图片尺寸841x592
板岩叠水1
图片尺寸677x423
景观细部施工图—旱跌水叠泉施工图设计
图片尺寸760x529