古城设计平面图

苏州古称平江府,又称姑苏.这是古城平面图.面积为14.2平方公里.
图片尺寸1280x1863
去平遥古城旅个游
图片尺寸680x655
小说素材古长安城布局
图片尺寸1080x1269
大理古城
图片尺寸1599x1199
山西这座城中国最完整的古城
图片尺寸1080x854
齐鲁古道上的那些古国古城,你了解吗
图片尺寸638x658
兴城古城游(一)
图片尺寸2000x2350
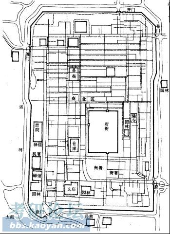
古城平面图
图片尺寸349x481
忻州古城年味正当红!城古州忻接下来是重磅推荐!
图片尺寸1080x900
寻访全国重点文物保护单位(27&28)——蔚县玉皇阁与蔚州古城墙
图片尺寸640x465
平遥古城
图片尺寸727x580
歙县徽州古城
图片尺寸1920x1080
忻州古城举办端午有礼粽享古城中国节系列活动
图片尺寸2214x1080
如果还没去过江南古镇那么请从同里开始
图片尺寸800x1083![[游记]一起去看海---辽宁兴城day2 古城](https://i.ecywang.com/upload/1/img0.baidu.com/it/u=7803093,4228625764&fm=253&fmt=auto&app=138&f=JPEG?w=519&h=500)
[游记]一起去看海---辽宁兴城day2 古城
图片尺寸600x578
大店古镇庄园旅游区规划设计
图片尺寸3307x2339
西安古城~梦回大秦~成都高铁到达西安先杀去了回民街~上了城墙
图片尺寸1080x1080![[甘肃]洞窟文化沙洲古城旅游度假区景观设计方案](https://i.ecywang.com/upload/1/img0.baidu.com/it/u=3789466800,4216354536&fm=253&fmt=auto&app=138&f=JPG?w=500&h=635)
[甘肃]洞窟文化沙洲古城旅游度假区景观设计方案
图片尺寸527x669
良渚古城平面结构示意图
图片尺寸853x1280
太行的美篇
图片尺寸2000x2667