古建屋顶平面

中国古建筑-屋顶.我国屋顶的样式也很多,不同地域,不同等级所 - 抖音
图片尺寸1080x1452
中国古建筑屋顶构造
图片尺寸658x433
屋面平面图
图片尺寸708x511
某地坡屋顶仿古大殿建筑方案设计图
图片尺寸610x432
屋顶平面
图片尺寸736x508
屋顶平面
图片尺寸582x431
古建构造图解|古建筑的上分_屋顶
图片尺寸1080x1525
屋顶平面图
图片尺寸820x569
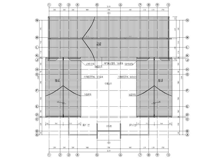
屋顶建筑平面图
图片尺寸760x543![[建筑设计施工图]单层双檐石,木结构歇山屋面古建筑](https://i.ecywang.com/upload/1/img2.baidu.com/it/u=4154092156,2797212167&fm=253&fmt=auto&app=138&f=JPEG?w=500&h=354)
[建筑设计施工图]单层双檐石,木结构歇山屋面古建筑
图片尺寸610x432
单层双檐石,木结构歇山屋面古建筑设计施工图-图九
图片尺寸610x432
苏式古建筑仿古木结构木建筑天正t20版本全套图纸歇山
图片尺寸1600x1280
编年史 | 中国古建筑小学堂屋顶的秘密(下)
图片尺寸685x528
古建筑之庑殿建筑的基本构架19
图片尺寸1210x888
古典文化:中国古建筑屋顶等级
图片尺寸640x564
古建筑屋顶ppt
图片尺寸1080x810
古建筑施工图,歇山亭,水榭-图一本工程为古建筑施工
图片尺寸610x861
某古建筑设计参考cad图-图一本工程为某古建筑设计
图片尺寸610x861
某地三层混凝土框架结构古建筑施工图纸 - 古建筑施工
图片尺寸610x432
中式民族古建祠堂建筑施工cad平面设计图纸图片3
图片尺寸610x432