合院设计图

农村四合院别墅设计,带庭院 96农村建房很多人都想有个院子,在院中
图片尺寸1280x1280
推荐一款带庭院的中式三合院别墅设计
图片尺寸750x999
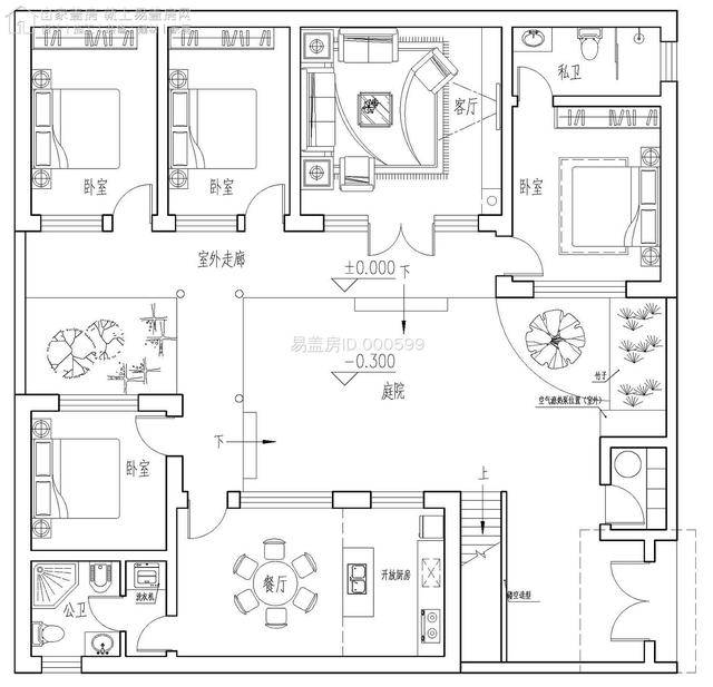
占地250方即可做二进合院,四卧两卫带大庭院
图片尺寸3000x3063
合院别墅设计合集符合众多人的口味更是一种审美的回归
图片尺寸640x674
300平两层中式合院设计图纸
图片尺寸910x1146
中式合院二层房屋设计图(农村中式两层房屋设计图) - 轩鼎房屋图纸
图片尺寸1280x720
四合院设计中式合院农村自建房中式合院新中式大宅范
图片尺寸700x932
中式一层合院设计大庭院凝聚家人情感
图片尺寸3000x2250
国人心中最美的房子经典合院分享内附图纸
图片尺寸2692x3370
什么是合院别墅?
图片尺寸900x1421
四合院推荐爆款农村自建房别墅设计房子设计图纸效果图合集墅小宅
图片尺寸2000x1397
2020年最火的3套合院,占地百余平造价仅20万,赶紧回村建起来!
图片尺寸640x617
北京通州一层自建中式合院
图片尺寸660x898
农村自建房一层四合院效果图-中式单层四合院图纸大全-设计百科-墅小
图片尺寸2000x1397
合院式别墅你值得拥有 -别墅设计-乡村房子设计图-农村自建房设计图
图片尺寸1000x1227
中式合院小别墅效果图
图片尺寸1500x1031
一层合院现代别墅设计图,14款高颜值又实用的一层乡村别墅
图片尺寸640x356
一层的中式合院庭院设计大露台
图片尺寸4000x3000
5套中式合院别墅只花20万就能建一套快来看看你喜欢哪一套
图片尺寸1691x2000
河南农村自建两层中式合院别墅2020设计效果图
图片尺寸3095x2175