地暖图纸

住宅户型地暖设计图
图片尺寸720x534
别样幸福城(水暖项目) - 云南最专业的地暖,净水,新风,空调公司
图片尺寸3652x3210
地暖需要设计吗?_层高
图片尺寸1078x796
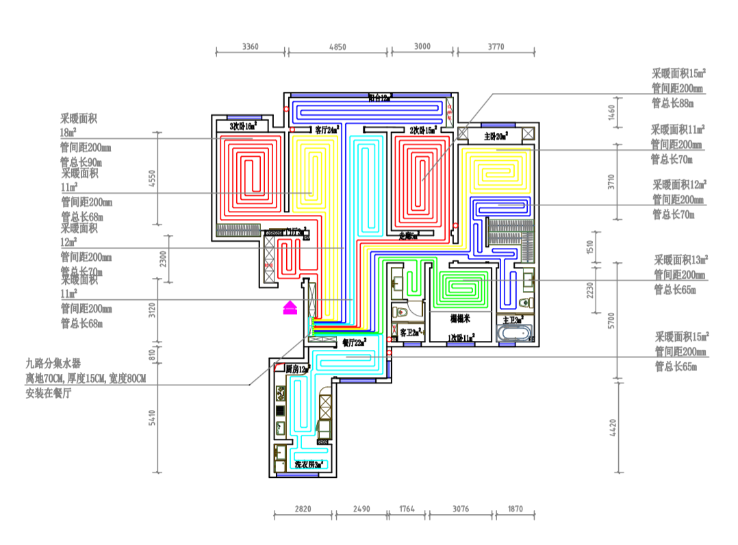
上海风荷丽景尚城复式五房三厅户型地暖图 - 橙羽暖商城通-一站式采购
图片尺寸1085x903
昆山别墅地暖图设计完成!#代画地暖图纸#承接地暖图纸设计 - 抖音
图片尺寸1440x2776
联排设计方案Ⅰ_北京健入佳境环境技术有限公司
图片尺寸1014x586
地暖采暖系统 - 南京迪普冷暖设备
图片尺寸3561x2529
复式设计方案_北京健入佳境环境技术有限公司
图片尺寸1028x544
请地暖大人来帮忙看看咱家的水暖排管图合理不~~~ 装修讨论 篱笆网 -
图片尺寸1531x1981
地暖做法cad电子版 地面水热电热辐射供暖系统细部节点大样图纸
图片尺寸801x800
地暖安装问题要求,地暖安装流程是什么?-重庆装修-重庆房天下
图片尺寸1107x787![[地暖管道]地暖管道布置,管间距以及户间传热问题 - 4 - 土木在线](https://i.ecywang.com/upload/1/img0.baidu.com/it/u=853946098,3515407402&fm=253&fmt=auto&app=138&f=JPEG?w=323&h=499)
[地暖管道]地暖管道布置,管间距以及户间传热问题 - 4 - 土木在线
图片尺寸388x600
地暖图
图片尺寸862x739
阜阳德国威能地暖施工案例
图片尺寸699x525
升龙城5号院---新风,地暖施工;红星美凯龙-南山舒适家&nather兰舍新风
图片尺寸1762x1200
地暖设计图点评_word文档在线阅读与下载_免费文档
图片尺寸1599x979
祥隆·绿城装修日志 - 美篇
图片尺寸2375x2000
这样的地暖,不要钱我也不要装!
图片尺寸640x456
采暖里这个地热盘管在gqi里用什么画?-服务新干线答疑解惑
图片尺寸999x604
地暖中央空调,空气能地暖系统,地暖系统图-越邦机电
图片尺寸1200x775