壹号半岛户型图

融创半岛壹号118平南北对流4房视野漂亮急售120万
图片尺寸999x1164
好住丨双阳台 四开间朝阳 江景!中堂纯新盘半岛1号户型鉴赏
图片尺寸899x905
半岛一号售楼处售楼中心24小时电话丨惠州半岛一号楼盘最新详情户型
图片尺寸740x1061
惠阳中心区半岛1号精装四房带全屋家私家电急找有缘人
图片尺寸1333x1000
半岛1号户型图
图片尺寸2047x1779
惠州半岛1号2室2厅1卫户型图-惠州楼盘网
图片尺寸1985x1674
融创半岛壹号售楼处电话→融创半岛壹号售楼中心电话→楼盘百科详情
图片尺寸740x862
富力·壹号半岛户型图_莆鱼房产网
图片尺寸800x1196
半岛1号户型图
图片尺寸2275x1667
笋盘必看半岛1号次新小区精装三房随时看房
图片尺寸1170x867
佛山融创半岛壹号开发商售楼处24小时电话4006398010售楼处电话项目
图片尺寸1080x1831
金科半岛壹号洋房140㎡一层户型图
图片尺寸1300x1776
半岛一号1期户型图
图片尺寸1200x900
165㎡现代轻奢风大平层无主灯装修壹号半岛
图片尺寸920x613
三水新城融创半岛壹号精装86平三房南向高层80万
图片尺寸999x1168
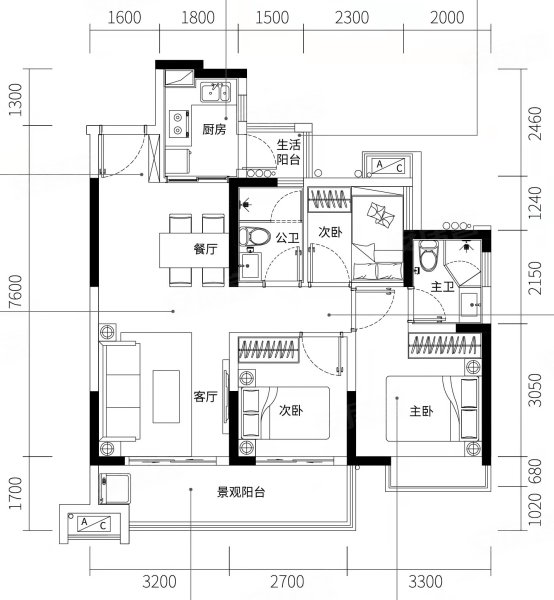
半岛1号3室2厅2卫88.34㎡南168万
图片尺寸554x600
1号楼a7户型
图片尺寸900x900
半岛一号1期户型图
图片尺寸1200x900
海南半岛壹号怎么样,半岛壹号房价_优缺点,户型图,配套-三亚诚房网
图片尺寸919x691
惠州半岛一号别墅售楼中心楼盘详情楼盘动态特价户型优惠点击预约
图片尺寸1080x1476