奶茶店平面图

奶茶店设计平面图:打造舒适,高效的饮品销售空间_顾客_未来的_的需求
图片尺寸721x495
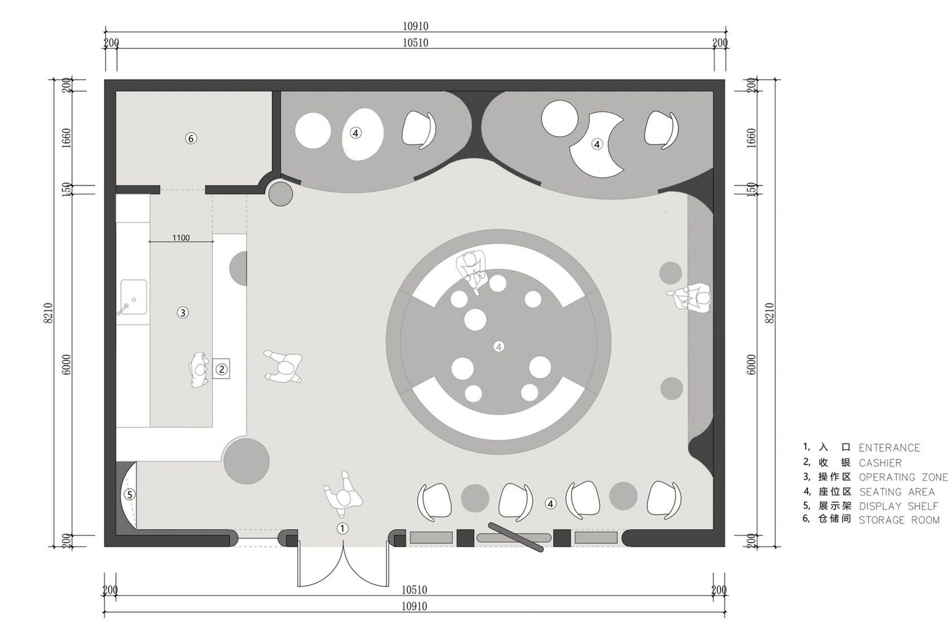
平面规划·不同面积的奶茶店平面布局
图片尺寸2560x1280
colobaba 混合茶饮店设计|空间|家装设计|tao空间设计_原创作品-站酷z
图片尺寸3000x2120
平面规划·不同面积的奶茶店平面布局
图片尺寸1916x1280
咖啡店☕️奶茶店 水吧平面图设计稿.#设计师日常 #爱生活爱 - 抖
图片尺寸1279x1920
点度设计 | 一间新生的奶茶店——青星茶饮_腾讯家居·贝壳
图片尺寸800x575
广西左崇市甜茶黑白灰色调的奶茶店铺设计/历新设计_元素
图片尺寸1500x831
历新设计案例——元小醇颜值奶茶店装修设计_手机搜狐网
图片尺寸900x1300
cad代画奶茶店平面布局图水吧冷饮茶点烘培蛋糕面包食品商业店铺
图片尺寸1000x1000
龙华茶千岁奶茶店装修现代简约45m²设计图片赏析--土巴兔装修效果
图片尺寸1000x720
4.6万56平米简约工装装修效果图,奶茶店装修案例效果图-齐家装修网
图片尺寸1600x1280
奶茶店转让 - 房产租售 - 小春论坛 - 小春
图片尺寸838x1489
奶茶店布局设计借鉴_搜狐汽车_搜狐网
图片尺寸1080x862
柠檬茶饮网红店|空间|室内设计|hongmu - 原创作品 - 站酷 (zcool)
图片尺寸3000x2121
老虎黑糖奶茶店 - 原创作品 - 站酷(zcool)
图片尺寸1120x770
奶茶店_星匠装饰设计案例_土巴兔深圳装修网
图片尺寸1000x1428
奶茶店设计|探店|水吧吧台选购指南装修设计
图片尺寸1080x1439
品牌奶茶店装修设计方案-一品威客网店面设计任务
图片尺寸2368x3392
「杭州麦田装饰」茶主播奶茶店装修设计效果图vs实景图
图片尺寸640x452
复刻经典,致敬头文字d,纯日式风奶茶店设计
图片尺寸816x680