宁寿宫花园平面

宁寿宫花园
图片尺寸1080x508
宁寿宫花园平面图
图片尺寸1004x1206
《乾隆宝薮》俯瞰故宫宁寿宫花园整体,会看到"花园中延绵着一条惊人的
图片尺寸1080x3772
【考点篇 敲重点】(元大都,御花园,慈宁宫,宁寿宫)
图片尺寸554x853
《中国古典园林史》慈宁宫花园,建福宫花园,宁寿宫花园!
图片尺寸1058x2170
洞天寻隐·御苑纪丨宁寿宫中的仙山:以宣石为线索_思想市场_澎湃新闻
图片尺寸1080x1734
南北方经典园林平面,必须收了!
图片尺寸1080x932
「单老师给孩子们讲故宫系列·十五」紫禁城内的宁寿宫
图片尺寸640x703
《中国古典园林史》慈宁宫花园,建福宫花园,宁寿宫花园!
图片尺寸720x1440
紫禁城宁寿宫平面图.宁寿宫可称为"宫中之宫"
图片尺寸187x450
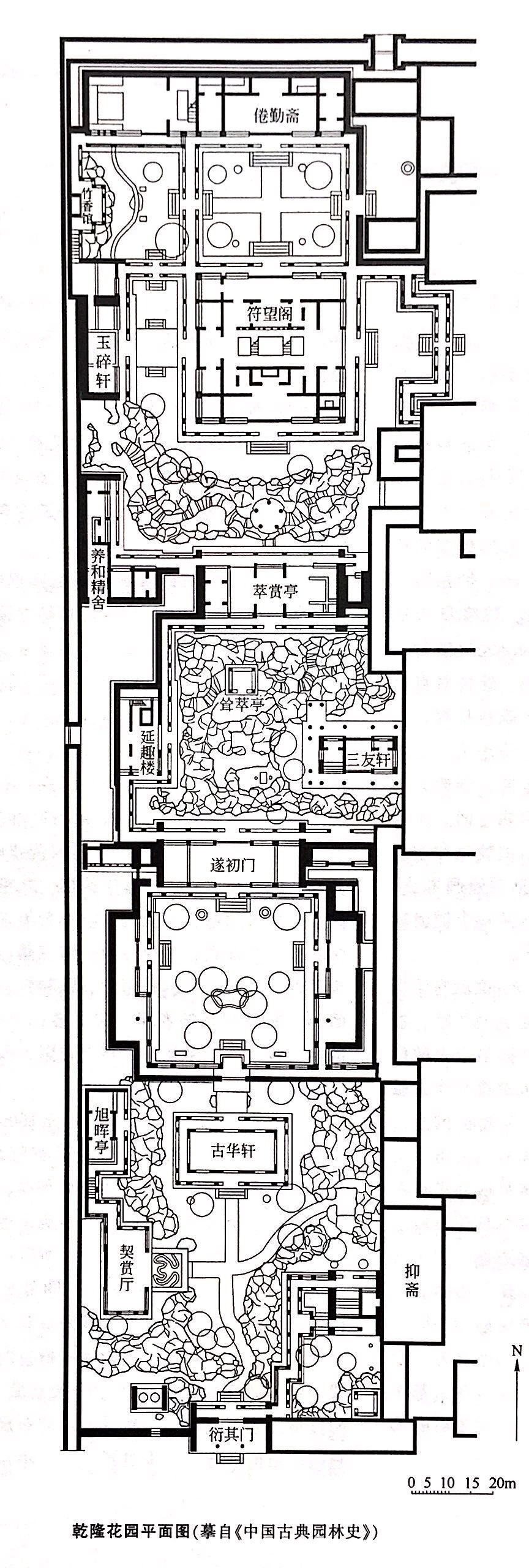
【 2 乾隆花园平面图 】
图片尺寸864x2560
【四月沙龙】北京.第32期 虚以待君王 -- 邂逅你的乾隆花园
图片尺寸435x871
真实的故宫上元夜诗月为伴清朗俊逸
图片尺寸687x911
静心斋素有"乾隆小花园"之称,与颐和园谐趣园,故宫宁寿宫花园并称为
图片尺寸1080x944
宁寿宫花园一直是个十分美丽的存在,但乾隆皇帝从未住进去过一次.
图片尺寸1422x984
【原创】闲话宁寿宫(附故宫全景图,谢绝转载)
图片尺寸930x705
京城古迹丨紫禁城里的花园,你都了解吗?
图片尺寸640x773
南北方经典中国园林平面图赏析
图片尺寸568x1280
紫禁城宁寿宫平面图.宁寿宫可称为"宫中之宫".
图片尺寸187x450
清朝皇帝们被骗200多年,却没人发现宫里的这个秘密?
图片尺寸600x582