富力山户型图
图片尺寸6025x3380
使用面积2800平仅此一处|富力山
图片尺寸1278x1704
富力山户型配套解读
图片尺寸4076x3380
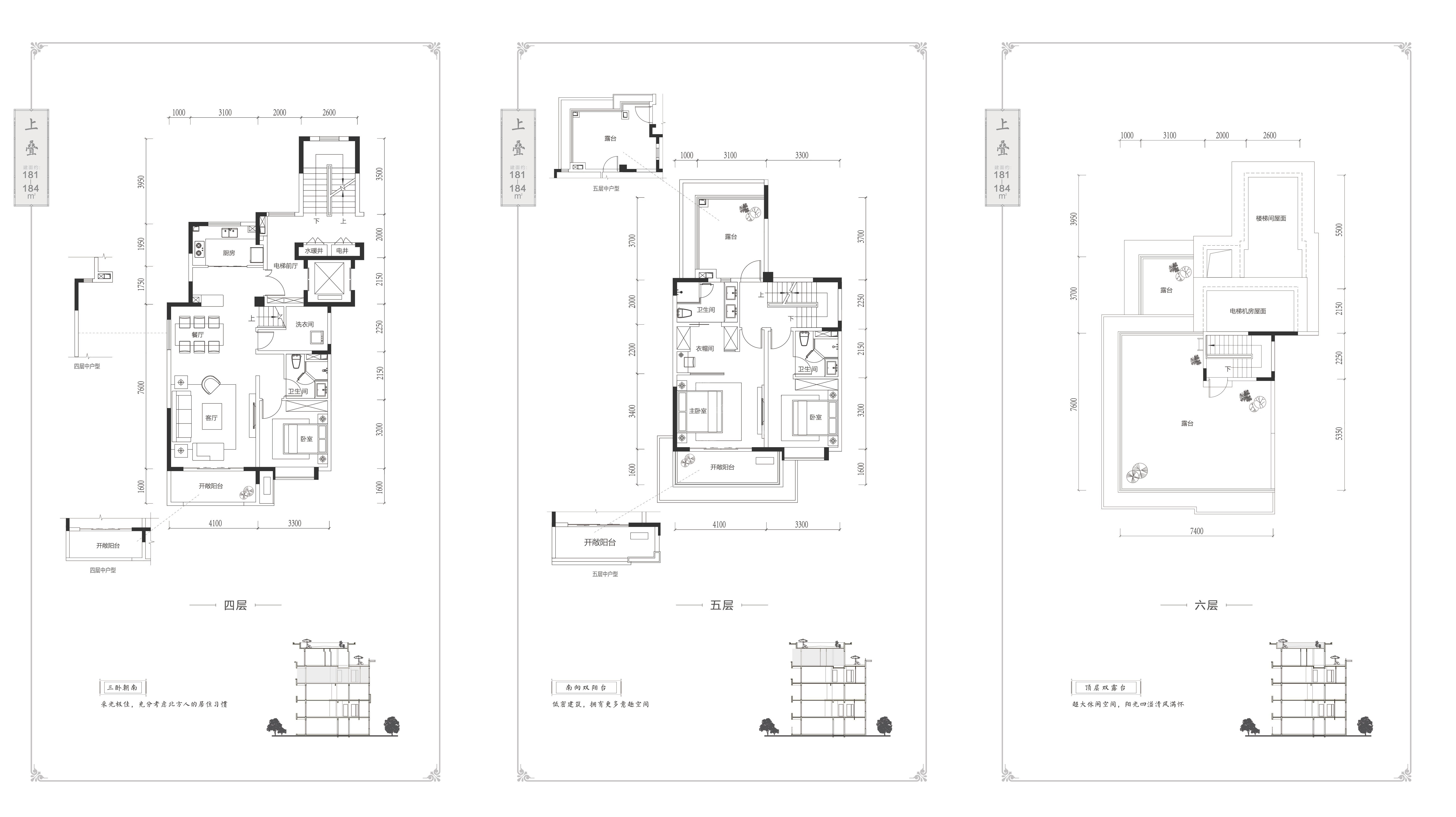
富力山户型图
图片尺寸352x530
这是富力山大平层的两个户型,整体都是两梯两户设计,可以看出都是动静
图片尺寸419x738
富力山
图片尺寸1000x781
富力山
图片尺寸900x921
富力户型图,尚悦居
图片尺寸4001x3508
无锡房地产>无锡新房>梁溪区楼盘>南长楼盘>富力山查看全部户型 具体
图片尺寸269x314
富力东山新天地精装修4房出租
图片尺寸1280x960
富力山
图片尺寸368x206
一起来看无锡4室2厅2卫1厨样板间!新家就要这样的!
图片尺寸1400x905
04-08 10:23 全部评论 大家都在搜: 唐山房产置邦小于
图片尺寸1424x2786
富力御官山一期南区
图片尺寸1080x1527
无锡梁溪区(富力山)首页网站
图片尺寸1280x3020
富力山装修
图片尺寸600x800
选用的方式,将四居室房屋交给装修公司,只花了16万元!
图片尺寸600x800
图片尺寸1280x2493
富力山怎么样?看置业顾问严孙静发布了一条项目新消息!
图片尺寸1136x1080
富力东山新天地
图片尺寸1109x903