少年宫平面图

青少年宫2385344
图片尺寸1100x774
活动现场分布地图承办单位:市青少年宫,市公安局交警支队直属一大队
图片尺寸748x681
虎门小学乡村少年宫活动平面布置图
图片尺寸640x480
珠海地域文化特色融入乡村少年宫
图片尺寸750x500
青少年宫艺术剧场设计-平面图青少年宫艺术剧场内饰面-效果图青少年宫
图片尺寸700x400
青少年宫2385345
图片尺寸1100x774
天津市少年宫
图片尺寸600x428
北京市新少年宫_北京_中国
图片尺寸792x594
谁能给我些少年宫的cad图纸做参考,不要学生作品.跪求.
图片尺寸986x551
青少年活动中心
图片尺寸1080x807
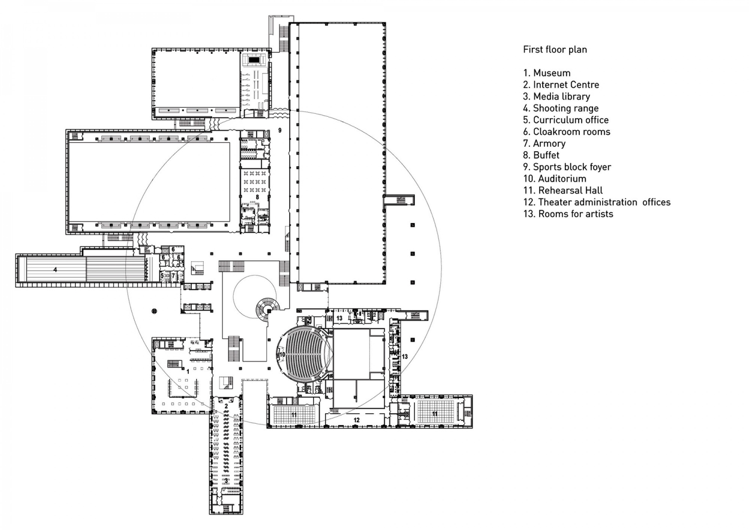
哈萨克斯坦少年宫二层平面图-哈萨克斯坦少年宫第21张图片
图片尺寸1500x1062
某青少年宫平面设计方案
图片尺寸560x396
未成年人中心场地指示图.jpg
图片尺寸3307x2441
四层平面图 上海少年儿童图书馆新馆建设工程 建设单位:上海少年儿童
图片尺寸640x385
长沙市青少年宫小杜鹃梦想剧场
图片尺寸548x500
2019年度教育部优秀勘察设计奖丨广州增城少年宫
图片尺寸1080x790
某小型少年宫全套建筑设计施工图纸
图片尺寸610x861
哈尔滨继红小学及少年宫平面图
图片尺寸1024x724
仓头中学少年宫
图片尺寸1600x1200
苏州青少年活动中心
图片尺寸1000x772