工作室平面设计

办公空间,国内办公室设计,梵布互动办公室,大海小燕设计工作室,上海
图片尺寸1000x1591
130平木皮展示工作室平面设计分享
图片尺寸1920x1448
栖居在灰墙间的金属盒子幼龙工作室北京办公设计欣赏
图片尺寸1000x701
麻吉设计|现代——工作室效果图
图片尺寸800x507
提升审美的5个设计师工作室官网.#平面设计广告设计 #海报设 - 抖音
图片尺寸1080x1439
一个小设计工作室,平面方案,希望大神们帮忙指导指导
图片尺寸1600x1280
空间改造小空间工作室的平面设计
图片尺寸1080x1080![[分享]北京设计工作室资料下载](https://i.ecywang.com/upload/1/img2.baidu.com/it/u=3496267900,1805474734&fm=253&fmt=auto&app=138&f=JPEG?w=667&h=500)
[分享]北京设计工作室资料下载
图片尺寸760x570
青岛追梦影视工作室办公设计
图片尺寸900x669
偏离设计丨moon摄影工作室
图片尺寸640x291
料亭松子堤由匡建筑设计工作室
图片尺寸1600x1131
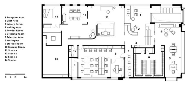
名津设计,广州办公室设计,高定婚纱工作室,婚纱工作室设计
图片尺寸1500x1439
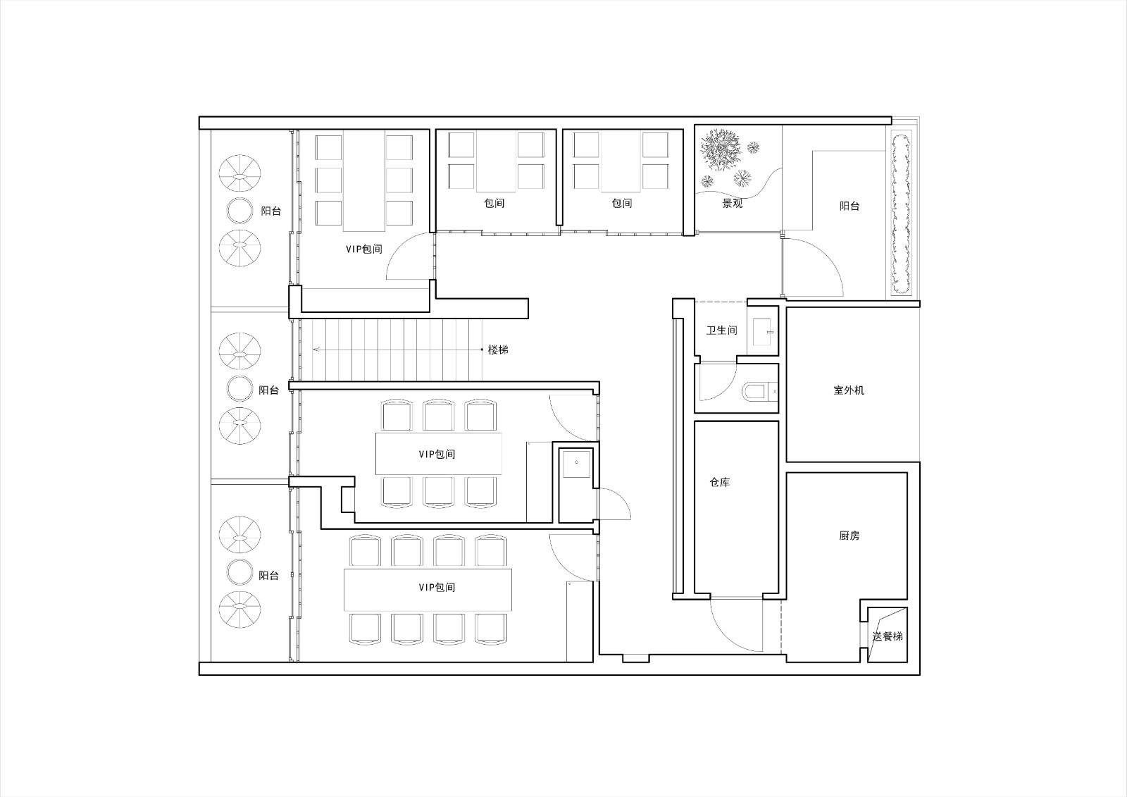
设计工作室平面方案
图片尺寸2344x1036
工作室_平面设计公司,设计网站,设计工作室-时间财富网
图片尺寸1900x1351
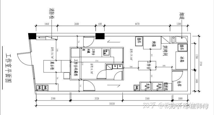
盖师傅 平实设计 工作室最近有个烘培馆的案子, 以前没有接触过这种
图片尺寸720x387
工作室丨平面设计
图片尺寸1080x668
原创loft设计工作室
图片尺寸800x480
共生北京爱马思艺术中心建筑营设计工作室
图片尺寸2000x1414
一匣一屉设计工作室平面设计2107926
图片尺寸1100x823
平面设计工作室设备申报
图片尺寸600x401