幕墙做法

玻璃幕墙施工安装要点及注意事项
图片尺寸1279x1529
铝板幕墙,石材幕墙,玻璃幕墙施工节点做法100多张详图!
图片尺寸513x657
玻璃幕墙扣板
图片尺寸3309x2339
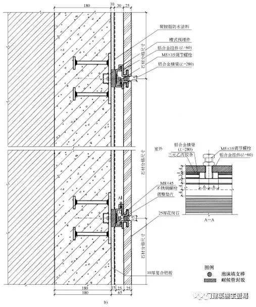
建筑幕墙施工技术|石材幕墙施工
图片尺寸680x512
传统明框幕墙做法
图片尺寸607x646
幕墙铝单板安装做法大样
图片尺寸382x674![[节点详图]节点详图(玻璃幕墙其他幕墙防水做法)vip](https://i.ecywang.com/upload/1/img2.baidu.com/it/u=124496238,2439400012&fm=253&fmt=auto&app=138&f=JPEG?w=560&h=420)
[节点详图]节点详图(玻璃幕墙其他幕墙防水做法)vip
图片尺寸560x420
幕墙培训资料ppt课件
图片尺寸800x4492
一种国外的明框幕墙做法
图片尺寸1108x700
幕墙基础知识ppt课件
图片尺寸800x4788
铝板幕墙,石材幕墙,玻璃幕墙施工节点做法100多张详图!
图片尺寸507x607
伦敦北京和上海三场大火吞噬169人敲响了外墙保温警钟
图片尺寸640x598
石材幕墙大样图-红砂岩幕墙转角横剖节点.pdf 1页
图片尺寸1265x895
铝板幕墙,石材幕墙,玻璃幕墙施工节点做法100多张详图!
图片尺寸588x772
建筑外墙的整套做法,看这一篇文章就够了!学会能让你家产品溢价10%!
图片尺寸640x632
玻璃幕墙cad节点大样图
图片尺寸2396x2024
明框玻璃幕墙安装施工方法
图片尺寸841x507
玻璃幕墙工程安装检验方法及案例
图片尺寸634x479![[分享]幕墙施工节点做法100多张详图!](https://i.ecywang.com/upload/1/img0.baidu.com/it/u=1929167020,1540324089&fm=253&fmt=auto&app=138&f=JPEG?w=514&h=500)
[分享]幕墙施工节点做法100多张详图!
图片尺寸562x547
石材幕墙干挂做法
图片尺寸640x480