平屋顶剖面图

平屋顶设计建筑构造与识图
图片尺寸1653x1020
平屋顶设计建筑构造与识图
图片尺寸1676x1035
平屋面建筑构造节点详图
图片尺寸610x861
平屋顶设计建筑构造与识图
图片尺寸1004x723
平屋顶坡度由什么形成?有材料找坡(垫置坡度)和结构找坡(搁置坡度).
图片尺寸528x349
平屋顶的组成
图片尺寸576x432
屋顶平面剖面图
图片尺寸1000x647
平屋顶构造---ky
图片尺寸1080x810
平屋顶设计建筑构造与识图
图片尺寸1594x975
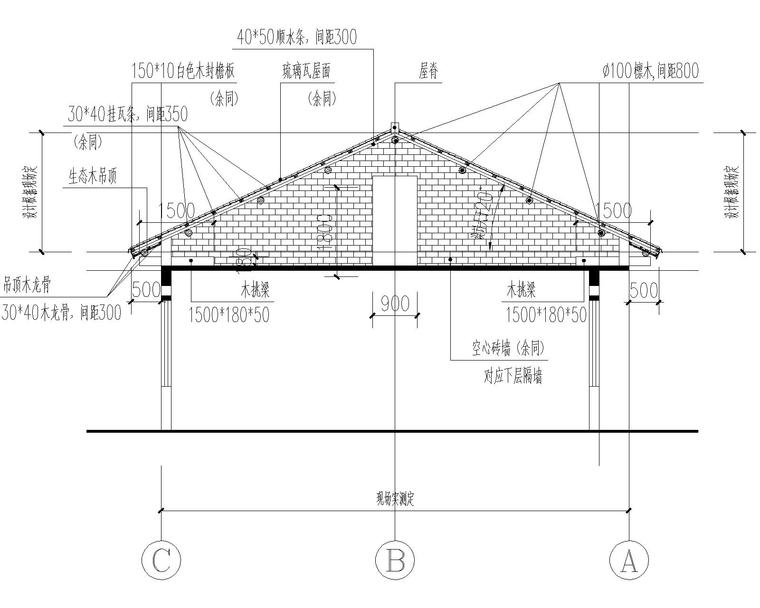
厅堂剖面图
图片尺寸840x481
平屋顶设计建筑构造与识图
图片尺寸1375x1044
35古建筑之卷棚歇山的山面构造
图片尺寸610x432
某地节点图集坡屋面檐口天沟屋顶彩钢板屋面平屋面cad图纸
图片尺寸610x503
平屋顶设计建筑构造与识图
图片尺寸1299x880
瓦屋顶节点做法(剖面)详图一图片2
图片尺寸610x432
平屋顶设计建筑构造与识图
图片尺寸910x718![[贵州]农房屋顶改造建筑设计施工图](https://i.ecywang.com/upload/1/img2.baidu.com/it/u=2670690301,1119652004&fm=253&fmt=auto&app=138&f=JPEG?w=625&h=500)
[贵州]农房屋顶改造建筑设计施工图
图片尺寸760x608
平屋顶构造-6 屋顶_第3页
图片尺寸920x1150
平屋顶设计建筑构造与识图
图片尺寸961x827
11个平屋面建筑构造节点详图
图片尺寸817x640