建筑幕墙图纸

给你发一份幕墙施工图纸,看看咋搞!别问我有活没有,先考试下你
图片尺寸1440x2788
图片尺寸1080x2408
建筑幕墙深化设计#幕墙设计#幕墙#建筑设计#设计案例分享#玻璃幕墙
图片尺寸1080x1080
幕墙构造图纸图集.承接 幕墙深化设计,石材幕墙深化,玻璃幕墙
图片尺寸1080x1920
给你发一份幕墙施工图纸,看看咋搞!别问我有活没有,先考试下你
图片尺寸1440x2788
幕墙图纸
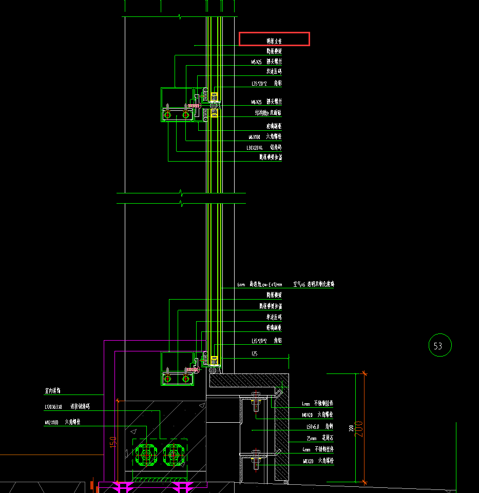
图片尺寸933x961
双层通风玻璃幕墙
图片尺寸900x1095
📝构造图:玻璃幕墙
图片尺寸1920x2560
玻璃幕墙施工图深化设计,铝板石材玻璃雨棚幕墙工程下料加工图
图片尺寸1124x900
隐框玻璃幕墙节点cad图纸
图片尺寸978x1066
以下是一些关键点,帮助你更好地理解幕墙图纸: 构
图片尺寸1440x1410
建筑幕墙设计常见节点图解析
图片尺寸1201x1050
隐框玻璃幕墙开启扇的竖向节点详图.png
图片尺寸1255x1500
幕墙平面图,幕墙图纸讲解
图片尺寸1088x729
铝单板幕墙施工图深化设计,铝板石材玻璃幕墙工程下料加工图.#
图片尺寸774x954
幕墙平面图,幕墙图纸讲解
图片尺寸1677x2291
玻璃幕墙施工图深化
图片尺寸1110x920
在玻璃幕墙的二次设计施工图中,消防救援窗的位置和尺寸必须与原建筑
图片尺寸1080x1326
图片尺寸903x788
可作为建筑外立面装饰施工图纸
图片尺寸1023x8774