开水房平面图

客厅和厨房,卧室之间没有动静的分区,直接通过各个门相连.
图片尺寸720x1085
卫生间,开水间平面放大图
图片尺寸374x434
中间单元底层给水,热水,排水工程平面图
图片尺寸716x585
房屋2间,建于30多年前,建筑质量较差,屋内装修破旧,无卫生间及洗澡间
图片尺寸1080x763
下面将从上下水的角度详细分析二楼的优缺点,希望在购房的过程中能
图片尺寸515x528
参考答案:设计条件与要求图中所示为集体宿舍洗浴间及盥洗间建筑平面
图片尺寸1016x479
开间6-8米,适合小宅基地的四层自建房图纸集合
图片尺寸640x873
给排水平面布置图-余味第14张图片
图片尺寸1500x1206
九牧王品质整体淋浴房一体式卫生间家用干湿分离浴室房简易沐浴房
图片尺寸750x641
18m/h直饮水项目施工图纸
图片尺寸1029x738
步进式商务开水器,步进式电开水器安装与调试
图片尺寸893x535
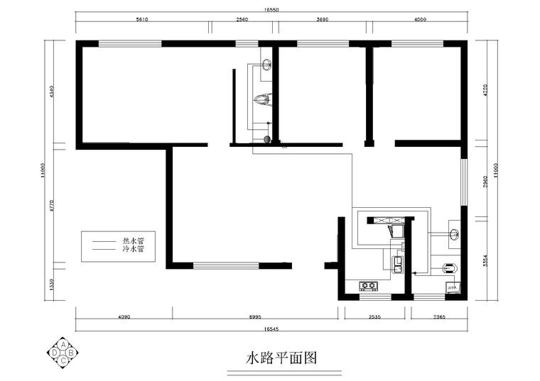
某三居室雅居装修设计工程施工图 效果图
图片尺寸760x537
讲好品牌故事做好净水文章
图片尺寸912x643
请教一个热水回水的问题
图片尺寸619x670
惠州大亚湾房价,大亚湾房产网,惠州大亚湾楼盘信息,惠阳楼盘推荐,惠州
图片尺寸850x839
16米 5米宽的房屋设计图
图片尺寸500x532
某学校开水房和洗澡堂给排水设计图纸
图片尺寸610x432
大学校区开水房混凝土结构施工图
图片尺寸820x573
某学校开水房和洗澡堂图纸(共9张)
图片尺寸610x432
宜兴怎么有这么"横"的房子!
图片尺寸1000x1079