开水间平面图

卫生间,开水间平面放大图
图片尺寸374x434
房屋2间,建于30多年前,建筑质量较差,屋内装修破旧,无卫生间及洗澡间
图片尺寸1080x763
燃气热水器能装在卫生间里吗
图片尺寸1024x746
另外,卫生间的旁边还有一个门,但是内部不详.
图片尺寸720x1085
开水间,做饭间大样图
图片尺寸795x604
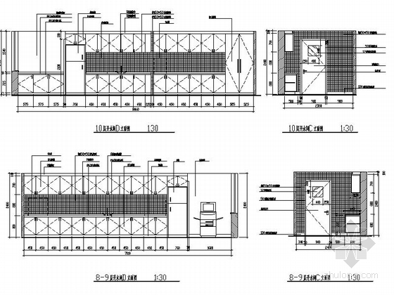
开水间立面图
图片尺寸560x420
3~10层卫生间给水平面图
图片尺寸760x561
餐厅开水房方案
图片尺寸436x306
某学校开水房和洗澡堂施工图纸
图片尺寸403x298
茶水间cad平面图男女洗手间平面图cad公共洗手盆站立式尿斗等一组cad
图片尺寸505x434
dayzdktdkcsb电开水器选型图集及说明
图片尺寸1041x750
办公楼卫生间泵房给排水设计图
图片尺寸450x350
2,给排水图纸中3层给水管道在9/10轴交e轴处开水间内引上后无图纸.
图片尺寸554x288
整体移动式开水房制造技术
图片尺寸1000x581
中间单元底层给水,热水,排水工程平面图
图片尺寸716x585
地下室人防干式卫生间可以不设地漏么
图片尺寸219x490![[浙江]现代大厦改建工程室内装修施工图开水间立面图](https://i.ecywang.com/upload/1/img0.baidu.com/it/u=4255472578,2245810376&fm=253&fmt=auto&app=138&f=JPEG?w=560&h=420)
[浙江]现代大厦改建工程室内装修施工图开水间立面图
图片尺寸560x420
太大了浪费,小的又怕不够热.
图片尺寸488x383
开水间:放置轮椅处为您提供了开水间,开水器指针在100°时表示可
图片尺寸961x1338
4,生活阳台,考虑到空间布置,无奈下取消装空气能热水器的计划,改装
图片尺寸800x357