弧形吊顶施工图

室内施工图弧形天花吊顶节点大样图分享二 #室内设计#0202#室内
图片尺寸961x1280
弧形石膏板吊顶施工细节
图片尺寸1280x1706
室内施工图三种圆拱型吊顶节点大样图分享
图片尺寸1080x1440
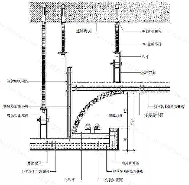
室内施工图弧形反光灯槽吊顶节点大样图分享 #室内设计# #室内设计
图片尺寸960x1280
弧形吊顶
图片尺寸1080x1304
弧形顶面铝板吊顶的计算规则按照投影面积吗如图
图片尺寸862x556
室内通用天花吊顶节点(材料拼接,龙骨等)
图片尺寸760x537
石膏板异形吊顶cad图库室内设计家装客餐厅卧室顶棚天花欧式图纸
图片尺寸800x800
你们要的异形吊顶施工做法全在这了
图片尺寸639x625
室内通用天花吊顶节点(材料拼接,龙骨等)
图片尺寸760x537
室内通用天花吊顶节点(材料拼接,龙骨等)
图片尺寸760x537
170个酒店装饰装修节点大样详图
图片尺寸1600x1280
石膏板曲面造型吊顶 j-05-06-08-室内装饰施工工艺-图片
图片尺寸1703x903
弧形天花节点大样深化.
图片尺寸1920x1356
像顶面为弧形的轻钢龙骨吊顶套哪个定额
图片尺寸1445x596
室内通用天花吊顶节点(材料拼接,龙骨等)
图片尺寸760x537
弧形异形吊顶详图施工图下载
图片尺寸1600x1131
铝单板弧形吊顶剖面图
图片尺寸560x420
工地实景横梁变形记弧形吊顶实景落地
图片尺寸1080x1439
弧形异形吊顶详图施工图下载
图片尺寸1600x1202