徽派建筑平面图

一层徽派四合院平面图
图片尺寸800x657
徽州民居建筑形式特点.doc
图片尺寸792x1120
西递宏村(安徽)
图片尺寸555x508
免费文档 所有分类 工程科技 建筑/土木 以云溪别墅为例对徽州民居的
图片尺寸1152x831
78徽州府汪氏家祠布局徽派古园林三升四级
图片尺寸1080x1441
大圩镇新农村徽派建筑施工图纸标注明细
图片尺寸1440x1020
本资料为:某三层框架结构徽派民居设计cad建筑方案图;内含:各层平面图
图片尺寸610x861
大圩镇新农村徽派建筑施工图纸标注明细
图片尺寸1440x1020
"徽派大院",不愧为农村百年大宅!
图片尺寸3508x4962
大美徽派四合院24x37,浓浓中国味
图片尺寸1200x1696
歙县一日游
图片尺寸2667x2000
在古徽州的土地上诞生了 这便是 "徽派建筑" ▼徽派建筑的平面布局由
图片尺寸750x1295
徽派建筑别墅设计
图片尺寸1032x869
徽州古建之美|第六期:民居的布局_腾讯新闻
图片尺寸1000x673
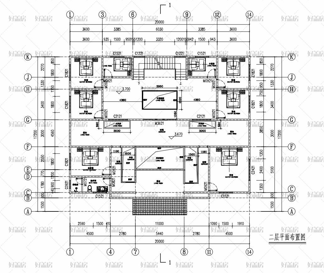
别墅平面布置图徽派建筑
图片尺寸1080x1034
徽式四合院设计图
图片尺寸1214x825
安徽自建二进门三庭院中式私宅27x43米丨建筑师作品展
图片尺寸775x1046
海豚湾十月主题第一周 ——《中国建筑》 写美篇徽州建筑又称徽派建筑
图片尺寸2666x2000
图一本资料为徽派民居建筑设计cad施工图,其包含的内容为三层平面屯
图片尺寸610x861
某安徽培德堂二层徽派民居古建筑cad设计图纸
图片尺寸610x432