户型模型尺寸

设计图库 3d设计 室内模型 上传: 2017-8-26 大小: 215.
图片尺寸991x687
张继林室内尺寸图3.30-model.jpg
图片尺寸3408x4861
户型模型里面,家具都会进行缩小,看起来空间很大的样子,实际上的尺寸
图片尺寸1080x1055
模型,软装家具,定制家具,房间名,面积,尺寸线的显示进行设置在页面最
图片尺寸1024x837
看房主动送卷尺这家民营房企老板一出手实现完胜
图片尺寸693x681
精装户型模型
图片尺寸1080x1080
你模型尺寸不对,卫生间自己重新弄
图片尺寸614x691
户型模型
图片尺寸600x504
再比如佳运·瑞璟湾建面约123㎡的户型,对比项目周边128㎡户型,佳运
图片尺寸1080x1020
沙盘建筑模型材料包diy手工室内剖面户型图套装家居摆件模型1:25 户型
图片尺寸750x1132
资料2024年最新室内设计师资料库家装篇
图片尺寸1000x875
户型尺寸
图片尺寸2240x1344
欧式风格三居室住宅设计施工图(附效果图 模型)
图片尺寸607x586
户型免责:本模型仅为户型结构示意,因技术,装饰效果,比例等因素所限
图片尺寸1013x715
现代风格家装(个性装修效果模型cad图纸)
图片尺寸1074x794
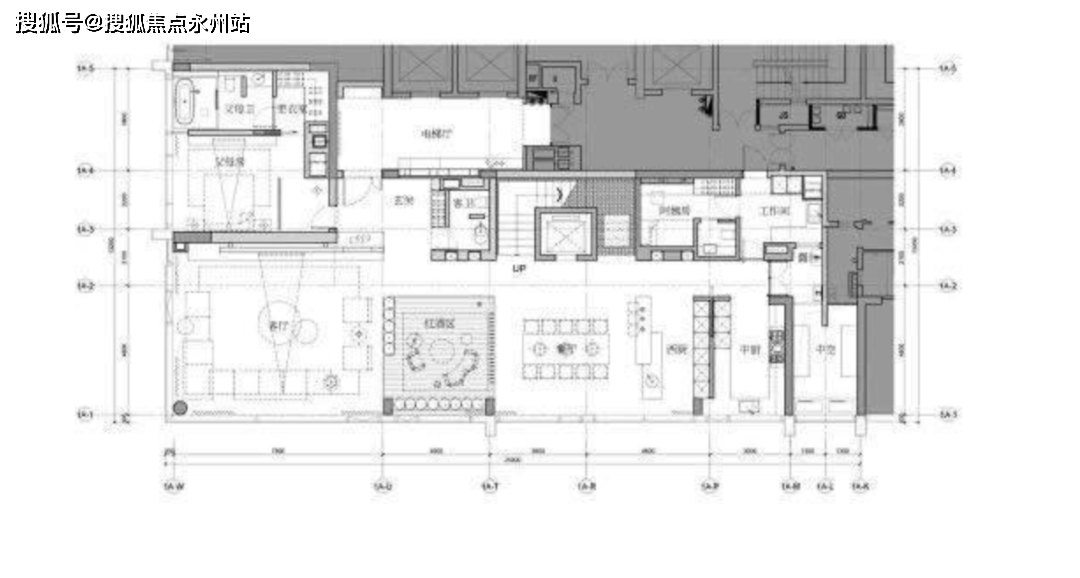
198平四居三卫,比较豪的一个尺寸,格局分布也比较合理
图片尺寸660x896
史密斯住宅平面图和模型尺寸 19 2011-02-27 用cad做装修设计平面图应
图片尺寸375x500
复古豪华欧式户型,3d模型免费下载,3dmax模型,材质贴图,cad图库大全
图片尺寸600x658
住宅户型尺寸大全,做室内设计的都得知道!
图片尺寸761x366
户型 户型图 平面图 1080_578
图片尺寸1080x578