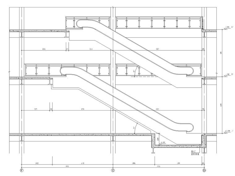
扶梯剖面图

自动扶梯构造讲解ppt
图片尺寸1080x810
地铁车站自动扶梯电梯相关知识培训讲义ppt
图片尺寸760x570
如何防止自动扶梯吃人再忙也要看
图片尺寸717x440
自动扶梯剖面图
图片尺寸1640x1171
自动扶梯的结构简图
图片尺寸1080x810
自动扶梯的构造.jpg
图片尺寸1200x919
认知扶梯和屏蔽门ppt
图片尺寸1080x810
奥的斯自动扶梯大样2
图片尺寸1311x927
商场电梯自动扶梯cad施工图建筑楼梯货梯客梯电梯剖面节点cad图纸
图片尺寸750x750
自动扶梯的这些知识你知道多少
图片尺寸1268x658
自动扶梯Ⅵ-Ⅵ剖面图.jpg
图片尺寸760x570
自动扶梯及自动人行道结构及原理 ppt
图片尺寸860x645
自动扶梯结构图文.pdf 28页
图片尺寸800x1120
自动扶梯的结构及主要参数
图片尺寸690x563
cn207330092u_一种室外自动扶梯有效
图片尺寸1642x869
电梯,扶梯基础知识培训ppt
图片尺寸1080x810
j型自动扶梯基础ppt
图片尺寸1080x810
cn112193976a_一种大跨距无支撑自动扶梯在审
图片尺寸2572x1779
非标电梯设计 德国合资地铁自动扶梯1
图片尺寸930x956
自动扶梯模型自动扶梯教学实训模型自动扶梯教学实训设备
图片尺寸677x450