挑檐图纸

挑檐钢筋如何计算
图片尺寸496x558
高层挑檐造型的分类问题
图片尺寸745x647
挑檐钢筋怎么画
图片尺寸697x538
挑檐应该怎么定义和绘制
图片尺寸2976x3968
dy-挑檐详图c
图片尺寸560x405
现浇挑檐结构大样详图(cad)施工图下载【id:165775158】
图片尺寸1280x1024
用自定义线画这个挑檐钢筋该怎样设置要自己算根数吗分布筋感觉图上标
图片尺寸1440x1080
挑檐的处理方式
图片尺寸623x350
挑檐
图片尺寸939x667
求挑檐在软件的具体设置
图片尺寸2448x3264
这个挑檐该怎么画!谢谢老师!
图片尺寸483x371
挑檐的平面图如图所示一,图纸介绍
图片尺寸517x482
预制板挑檐大样图纸
图片尺寸543x522
钢筋算量中这种挑檐怎么画
图片尺寸709x641
挑檐的装饰面
图片尺寸1007x777
挑檐大样图
图片尺寸760x571
怎么设置这一种挑檐怎么布置钢筋
图片尺寸899x657
挑檐详图
图片尺寸323x314
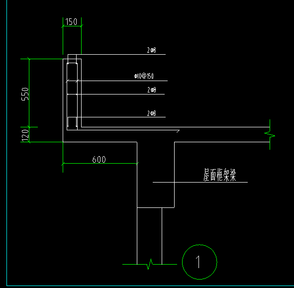
挑檐设法
图片尺寸591x579
请问这样的挑檐是怎么定义的上面斜板是画在挑檐里还是用板定义
图片尺寸793x578