斜吊顶节点

一种大面积斜面穿孔石膏板吊顶跌级造型安装结构的制作方法
图片尺寸1000x573
注塑模斜顶顶出设计要点
图片尺寸687x793
石膏板吊顶节点图(阴角,顶面石膏线条)
图片尺寸760x570
斜屋顶详图
图片尺寸560x449
斜屋面曲面天花解析
图片尺寸1080x815
折线型天花吊顶cad大样图
图片尺寸1800x1272
现代石膏板吊顶节点图施工图下载
图片尺寸1600x2200
室内通用天花吊顶节点(材料拼接,龙骨等)
图片尺寸760x537
室内通用天花吊顶节点(材料拼接,龙骨等)
图片尺寸760x537
室内施工图阶梯式斜面吊顶节点大样图分享 #室内设计# #cad施工图深化
图片尺寸960x1280
室内施工图圆弧形斜面吊顶节点大样图分享 #室内设计# #室内设计师
图片尺寸960x1280
室内通用天花吊顶节点(材料拼接,龙骨等)
图片尺寸760x537
多种天棚吊顶节点jpg图片
图片尺寸700x374
你们要的异形吊顶施工做法,全在这了!
图片尺寸639x625
石膏板吊顶节点图(灯槽带风口造型)
图片尺寸1797x1800
多种天棚吊顶节点jpg图片
图片尺寸700x399
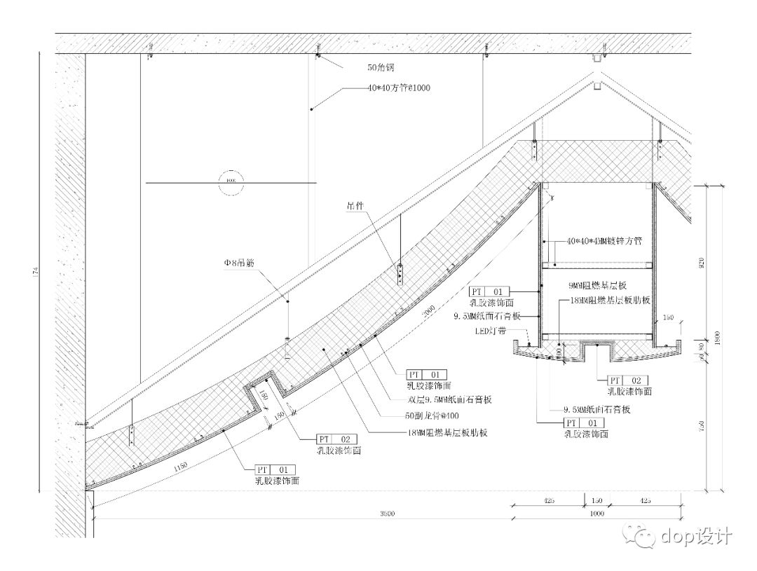
人字形斜屋顶吊顶剖面节点详图剖屋顶做法施工工艺深化cad施工图
图片尺寸1600x1600
室内施工图斜面天花吊顶节点大样图分享二 #室内设计# #室内设计培训
图片尺寸960x1280
天花石膏板吊顶工艺大全su细节节点
图片尺寸1080x587
铝单板弧形吊顶cad剖面图
图片尺寸340x224