晋江市控规图

福建:晋江市城市总体规划修编(2010-2030)方案公示
图片尺寸300x424
泉州晋江将新增两大复合功能型公交枢纽站涵盖商业交通等
图片尺寸640x415
福建:晋江市城市总体规划修编(2010-2030)方案公示
图片尺寸300x424
晋江市城市总体规划修编(2002-2020)——深规院
图片尺寸376x524
泉州晋江环湾发展中这一片区控规出炉,将规划打造大型综合区!
图片尺寸640x1032
晋江全域田野风光发展规划
图片尺寸634x794
包含晋江网站建设规划论文选题的词条
图片尺寸1080x1526
晋江金井综合改革建设试点镇总体规划-泉州市自然资源和规划局
图片尺寸453x665
福厦高铁晋江站综合经济区控制性详细规划
图片尺寸950x1345
泉南佛国,海滨邹鲁—福建晋江市国土空间总体规划(2021-2035)
图片尺寸640x719
交通条件优越,及晋江博物馆,科技馆,临近晋江市政府,晋江市医院同时
图片尺寸433x537
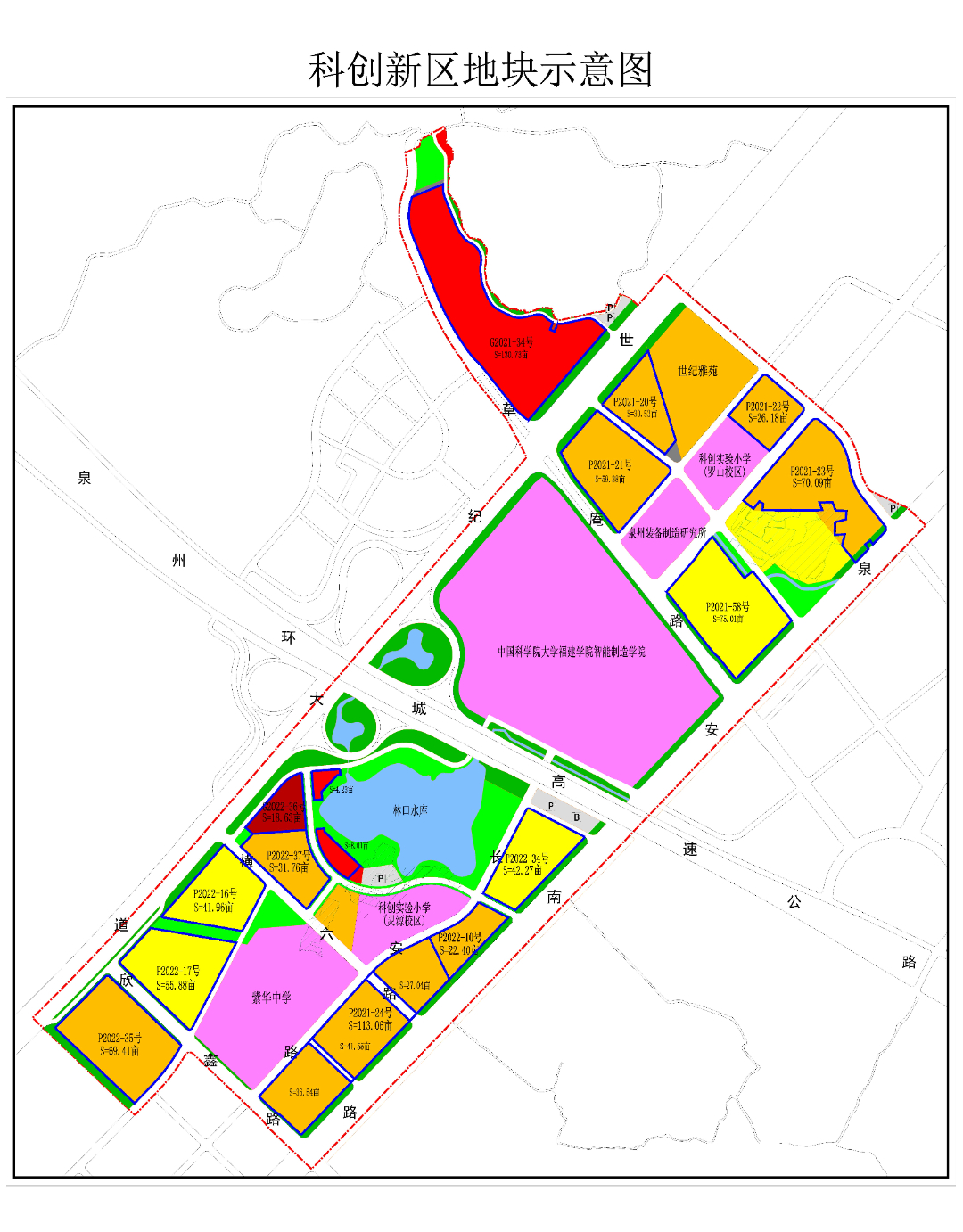
晋江市科创新区控制性详细规划——土地利用规划图
图片尺寸640x407
多个热门板块纳入…_城市_建设_晋江
图片尺寸1080x1426
晋江全域田野风光发展规划
图片尺寸621x780
福建:晋江市城市总体规划修编(2010-2030)方案公示
图片尺寸300x424
晋江金井综合改革建设试点镇总体规划-泉州市自然资源和规划局
图片尺寸447x665
晋江网站建设标准数据_(晋江网站建设标准数据查询)
图片尺寸1080x1382
晋江全年计划出让21幅商住地!
图片尺寸1080x1271
晋江全域田野风光发展规划
图片尺寸490x699
晋江一幅宅地1.29将拍
图片尺寸650x919