木栅栏尺寸

草坪护栏鑫盛塑木走道护栏花园围栏
图片尺寸750x1097
防腐木栅栏#款式分享 - 抖音
图片尺寸1440x1460
同创防护栏围栏实木栅栏户外花园庭院实木栏杆护栏网格木栅格篱笆防腐
图片尺寸750x716
厂家直销木格栅装饰板实木格栅长城板生态木护墙板电视沙发背景墙
图片尺寸790x1161
庭瑞 防腐木实木碳化庭院木栅栏防腐木栅栏护栏木围栏篱笆促销
图片尺寸750x1232
木栅栏防腐木门户外花园木门围栏栅栏碳化木拱门室外网格篱笆门庭瑞
图片尺寸750x864
简约实木格栅护墙板木饰面背景墙隐形门隔断网红木格栅凹凸长城板
图片尺寸750x977
运费按地区收费,请咨询卖家 实木栅栏围栏篱笆 尺寸:高度15cm 20cm
图片尺寸662x400
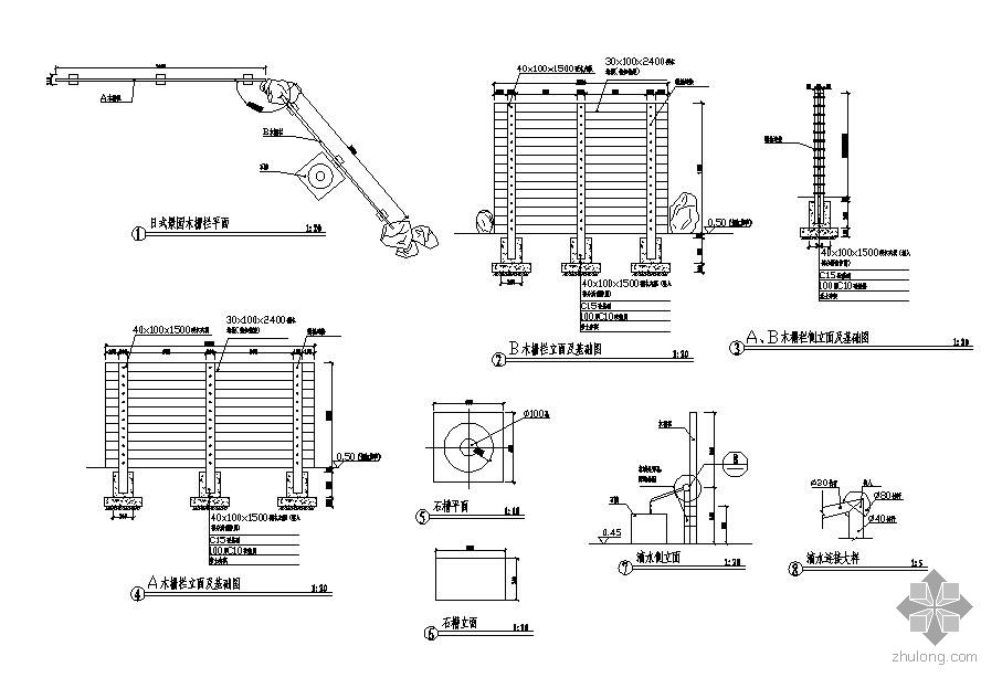
日式景园木栅栏做法大样
图片尺寸907x623
花园草坪防腐木栏杆护栏围栏栅栏小篱笆院子装饰庭院隔断户外室外
图片尺寸1080x812
户外木栅栏庭院护栏围栏门防腐实木护栏花园围栏隔断网格嘉际定制尺寸
图片尺寸350x350
花园草坪防腐木栅栏护栏栏杆围栏小篱笆栏栅装饰庭院围墙户外室外
图片尺寸790x790
户外防腐实木栅栏木质围栏花园篱笆菜园装饰花圃庭院草坪护栏绿化 特
图片尺寸800x800
防腐木栅栏户外庭院花园别墅阳台护栏碳化木围栏定制网格装饰hot
图片尺寸300x300
厂家现货-生态木100*100方木--假梁隔断立柱-环保方通吊顶材料批发-无
图片尺寸1095x505
防腐木栏杆护栏围栏栅栏花园草坪小篱笆院子装饰庭院隔断户外室外
图片尺寸750x1127
防腐木木栅栏木网格 - 抖音
图片尺寸800x800
定制安装户外防腐木碳化木围栏护栏花园栏杆篱笆花架栅栏庭院隔断
图片尺寸300x300
新品室外伸缩防腐木栅栅栏围栏篱笆户外实木栅栏
图片尺寸800x800
防腐木栅栏白色网格网片阳台壁挂隔断花架室外围栏护栏杆爬藤花架
图片尺寸800x800