枪型户型

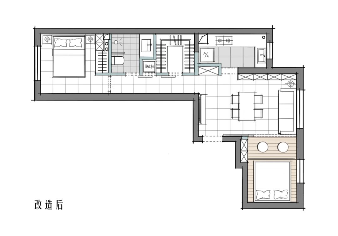
第一期:枪型户型
图片尺寸1080x675
枪型户型真的不能住
图片尺寸601x602
这是标准手枪户型吗|装修准备
图片尺寸2288x2693
什么是枪型户型?
图片尺寸1280x1380
解密枪型户型的致命缺陷
图片尺寸480x600
风水咨询请问这个户型是枪型吗
图片尺寸1080x877
空间设计 #小户型装修 #户型改造 #方案优化
图片尺寸1080x1126
这种户型是不是枪型户型呀,是不是风水上说不好
图片尺寸1080x1464
什么样的户型是好户型
图片尺寸320x478
太原齐家典尚装饰 | 3招破解奇葩手枪户型大难题
图片尺寸595x748
枪型格局应该怎么改造合理
图片尺寸800x800
「家居风水」手枪型户型
图片尺寸1056x1769
怎样才算是枪型户型
图片尺寸500x370
看他手枪户型的新家简约又舒适幸福生活由此开始羡慕
图片尺寸640x861
47 ㎡"手枪"小户型改造,颜值,实用兼得!
图片尺寸1080x754
枪型户型装修效果图如何解决枪型户型的的风水问题
图片尺寸800x800
40㎡手枪户型如何拥有双卧室和独立衣帽间
图片尺寸1080x675
朋友们枪型户型or跃层or三阳选哪个好点help
图片尺寸828x679
枪型户型不好是迷信吗
图片尺寸601x599
手枪型的户型, 麻烦帮我看下这个手枪户型风水怎么样.怎么化解.谢谢!
图片尺寸700x937