柜子大样图

小衣柜结构大样图
图片尺寸610x777![[资料]厨柜大样](https://i.ecywang.com/upload/1/img1.baidu.com/it/u=3764818299,174216392&fm=253&fmt=auto&app=138&f=JPEG?w=500&h=375)
[资料]厨柜大样
图片尺寸800x600
柜子施工图
图片尺寸1080x864
双门衣柜详图
图片尺寸640x480
玻璃展柜地柜酒柜衣柜鞋柜节点详图施工图下载
图片尺寸3000x2250
某展柜竖剖cad大样完整节点图
图片尺寸610x861
ccd柜子大样图
图片尺寸1112x789
某家庭模型展示柜cad大样图
图片尺寸580x1027
定制橱柜衣柜怎样看懂设计图如何审查柜子平面图立面图内部详图
图片尺寸834x640
绘制下单图---平开门衣柜(拓展作业)
图片尺寸4962x3508
内容简介 柜子大样图 柜子大样缩略图 柜子
图片尺寸800x600
图块/节点卧室小衣柜详图施工图下载【id:832235752】
图片尺寸800x1014
时尚花店cad施工图 效果图
图片尺寸727x567
小衣柜结构大样
图片尺寸480x640
多款衣柜平面立面详图
图片尺寸2000x3030
室内空间各种柜子柜台节点详图
图片尺寸760x537
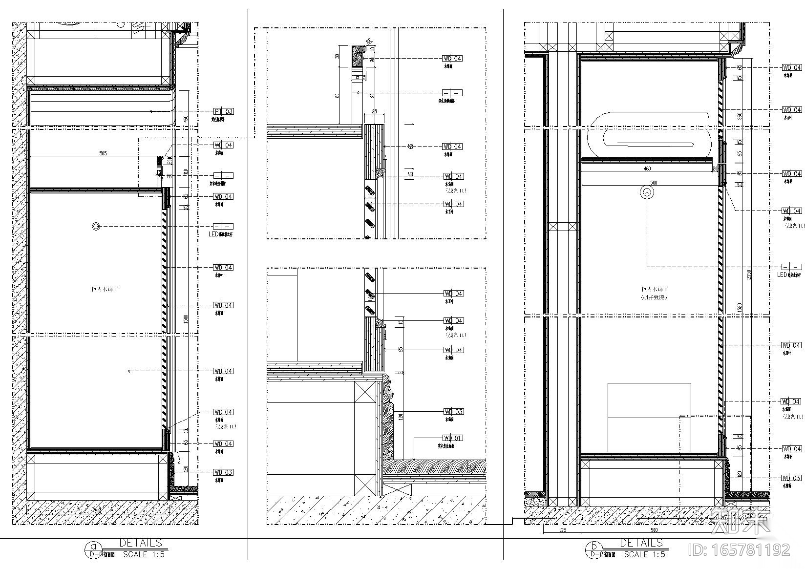
autocad图纸 13套衣柜和柜子大样图免费下载
图片尺寸1614x631
卧室衣柜及厨房壁柜等节点大样详图施工图下载
图片尺寸1648x1165
cad书柜剖面图节点大样图施工图
图片尺寸2500x3857
室内空间各种柜子柜台节点详图
图片尺寸760x537