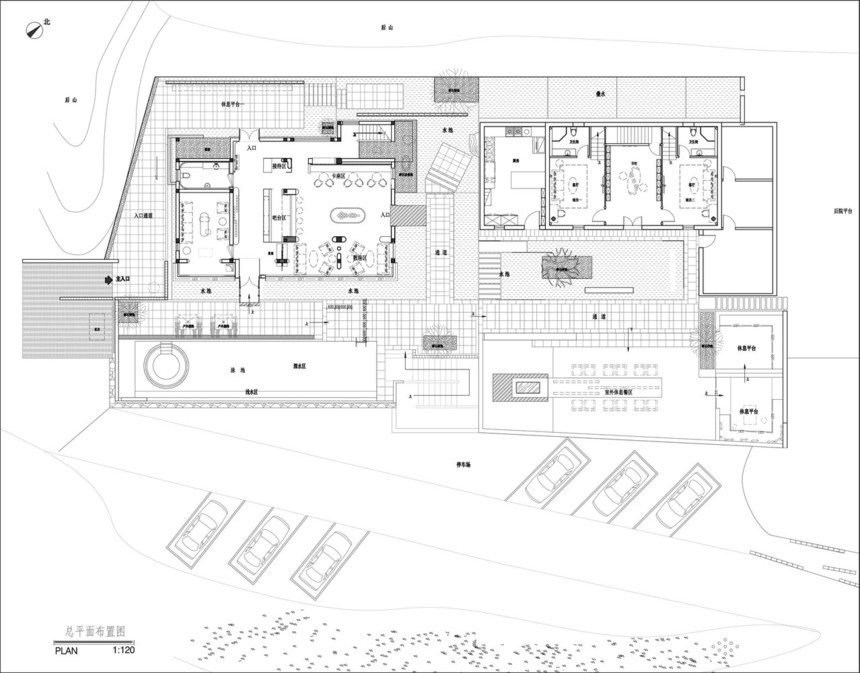
民宿总平面图

开封海棠花语民宿
图片尺寸1600x873
二层平面图 项目名称 | 九溪云中溪民宿 设计单位 | 杭州时上
图片尺寸1080x812
总平面图△ 一号院子平面图△ 三号院子平面图△ 八号院子平面图
图片尺寸2500x1727
一层平面图↑二层平面图工程名称:瓦筑·国子监精品民宿设计单位:b&
图片尺寸880x1021
北京怀柔北沟村"三卅"民宿,打造村中村
图片尺寸960x1441
藏式民宿酒店
图片尺寸3000x2121
总平面示意图 民宿,即"宿在民居",它如同老故事中旅人行
图片尺寸1500x973
翡宿-杭州余杭精品民宿项目招募
图片尺寸640x440
二层平面图工程名称:瓦筑·国子监精品民宿设计单位:b&d博睿大华
图片尺寸880x980
民宿平面布局设计图
图片尺寸1831x1354
民宿改造设计——织之屋
图片尺寸1500x956
moye木野民宿 / 泛域设计
图片尺寸860x673
温泉民宿设计|鸟瞰图彩平图
图片尺寸1080x756
北京房山丨「巷子·院」现代民宿这样设计,氛围感拉满
图片尺寸1080x608
云栖建筑丨占地150㎡的二层现代民宿,真是"表里不一"
图片尺寸1080x1015
申山乡宿·一号别院|古木子月空间设计_酒店民宿_室内设计联盟
图片尺寸1200x807
民宿设计平面图:打造独特,温馨的住宿体验
图片尺寸660x476
南岔湾石屋部落民宿中国美术学院风景建筑设计研究总院
图片尺寸3309x2339
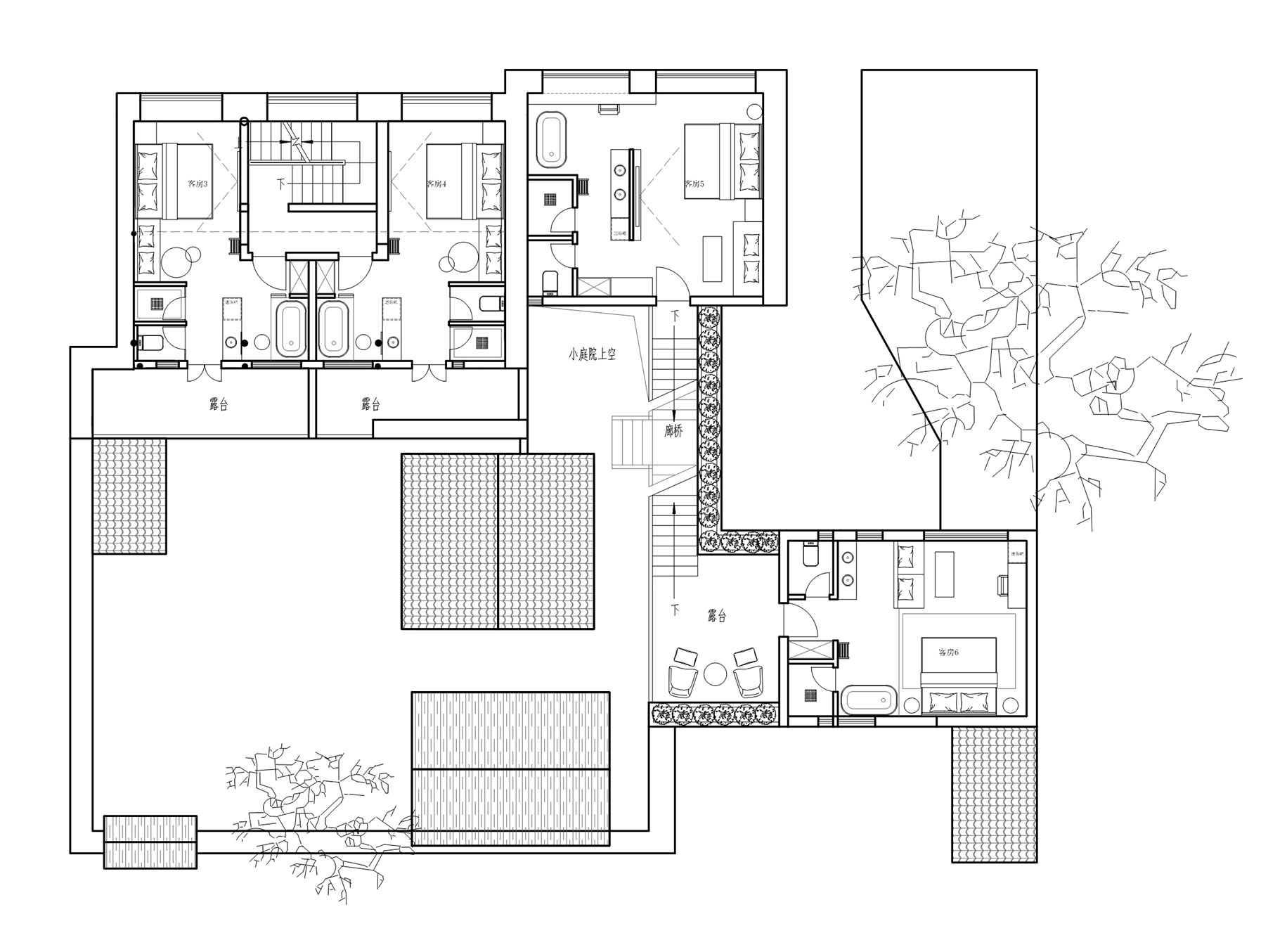
三层平面图人们对旅游体验的追求,加速了民宿项目的开发建设,一该好
图片尺寸3515x2133
元门小学民宿 | 安宁的休憩之地
图片尺寸1061x825