灯槽剖面图

天花侧灯槽通用剖面图
图片尺寸1349x952
010-灯槽
图片尺寸1195x911
轻钢龙骨石膏板灯槽剖面图cad
图片尺寸800x497
某灯槽cad完整构造节点图
图片尺寸610x432
三种天花吊顶反光灯槽做法节点图分享
图片尺寸1080x1440
【天花】石膏板吊顶节点图(常规灯槽造型)
图片尺寸1311x927
吊顶灯槽灯带剖面图
图片尺寸1800x1260
客厅吊顶灯槽处的三层石膏板阻燃板是按实计算还是按投影面积计算
图片尺寸818x542
某天花灯槽cad完整立面设计图
图片尺寸610x861
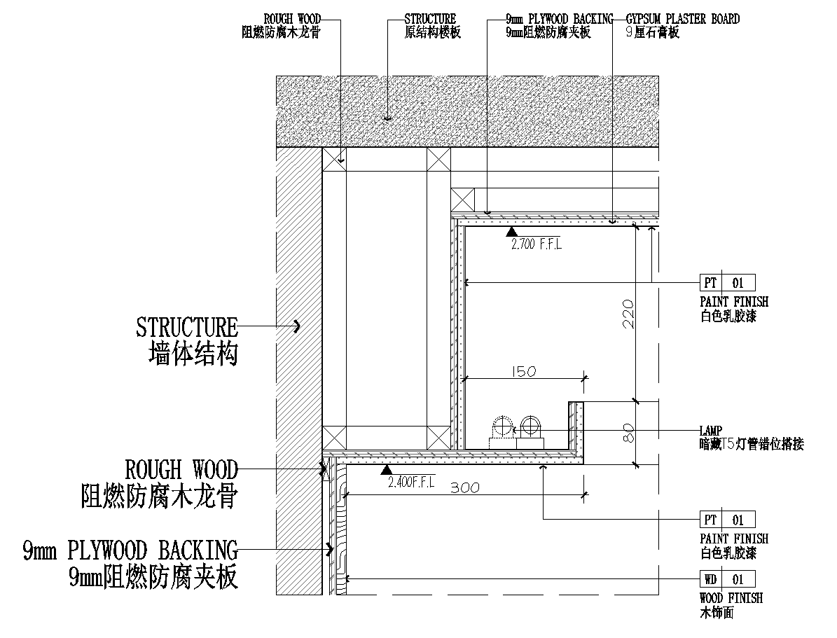
墙面侧灯槽通用施工图
图片尺寸1293x850
某墙身天花灯槽cad构造详细图
图片尺寸610x861
灯槽造型结构制造技术
图片尺寸1000x959
江西省这个灯槽的工程量如何计算及套定额
图片尺寸890x634
一种新型灯槽透光结构的制作方法
图片尺寸1000x901
天花中灯槽的截面怎么看
图片尺寸1074x821
定额里石膏板吊顶的灯槽是算的几个面
图片尺寸624x575
标准套间客厅灯槽节点图
图片尺寸560x420
暗藏灯槽施工图下载
图片尺寸1648x1165
天花反光灯槽三维示意图△软膜天花三维示意图△石材干挂三维示意图
图片尺寸1600x751
一种天花板灯槽结构制造技术
图片尺寸1000x984