猫咖平面图

猫咖美容院
图片尺寸1600x1280
35万元休闲空间105平米装修案例_效果图 - 猫咖丨波
图片尺寸660x464
猫咖馆|平面|海报|z73964939 - 原创作品 - 站酷 (zcool)
图片尺寸1280x2560
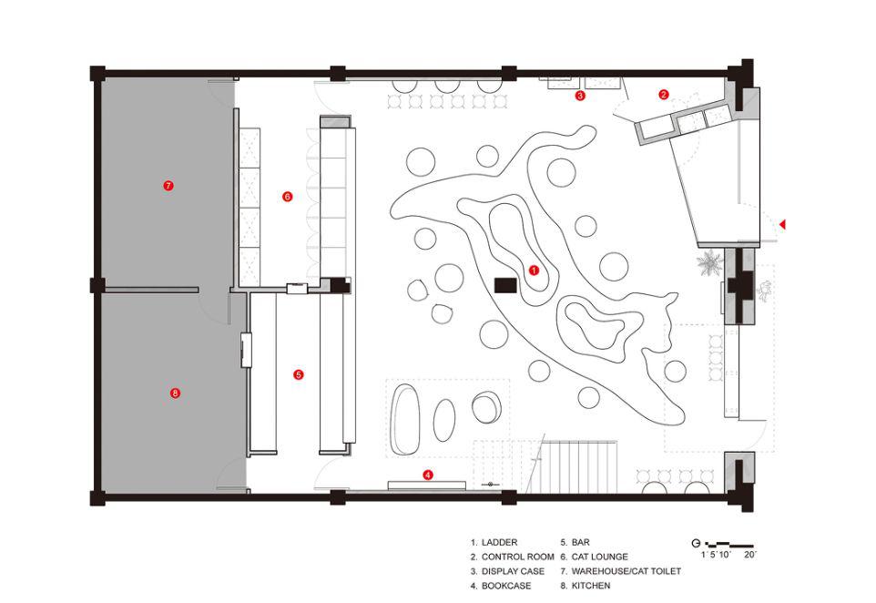
餐饮空间,国内咖啡厅设计,上海,咖啡厅,猫图咖啡,研趣设计,项目投稿
图片尺寸1000x1414
经过十多天的平面推敲,终于定稿.喜欢就点赞收藏吧
图片尺寸1080x767
《猫腻》咖啡馆餐饮设计作业
图片尺寸1280x819
萌到炸的撸猫咖啡店趣味性设计不能再赞
图片尺寸962x662
有点" 上头 "的猫咖,敢相信只有30㎡?
图片尺寸1080x1378
就是这样的喵咖啡厅二层平面图
图片尺寸1700x1317
《猫腻》咖啡馆餐饮设计作业
图片尺寸1280x819![[分享]猫舍施工图资料下载](https://i.ecywang.com/upload/1/img2.baidu.com/it/u=3107847643,187949774&fm=253&fmt=auto&app=138&f=JPEG?w=810&h=500)
[分享]猫舍施工图资料下载
图片尺寸5616x3468
潮酷十足的主,吸猫都特别创意
图片尺寸849x541
平面布置图
图片尺寸1260x785
一至三层平面图
图片尺寸640x642
猫咖全套施工图电气系统图
图片尺寸1139x863
摩根定制猫舍家用猫咖猫窝宠物店猫笼子展示柜狗笼子
图片尺寸700x700
平面图2019顶峰设计奖获奖作品特辑 part 5————▼餐饮空间方案
图片尺寸1080x764
星期三的快乐是潘通色猫咖给的家club
图片尺寸1080x764
猫舍现代简约
图片尺寸1882x1326
猫咪咖啡馆美国davidsonrafailidis
图片尺寸960x444