电机装配图cad图

电机设备制图cad图块
图片尺寸560x412
在线生成的图纸不需要选用电机就可以直接生成尺寸图,在线下载cad图纸
图片尺寸720x504
不 剖 画 法 在装配图中,当剖切平面通过的某些部件为标准产品或该
图片尺寸314x495
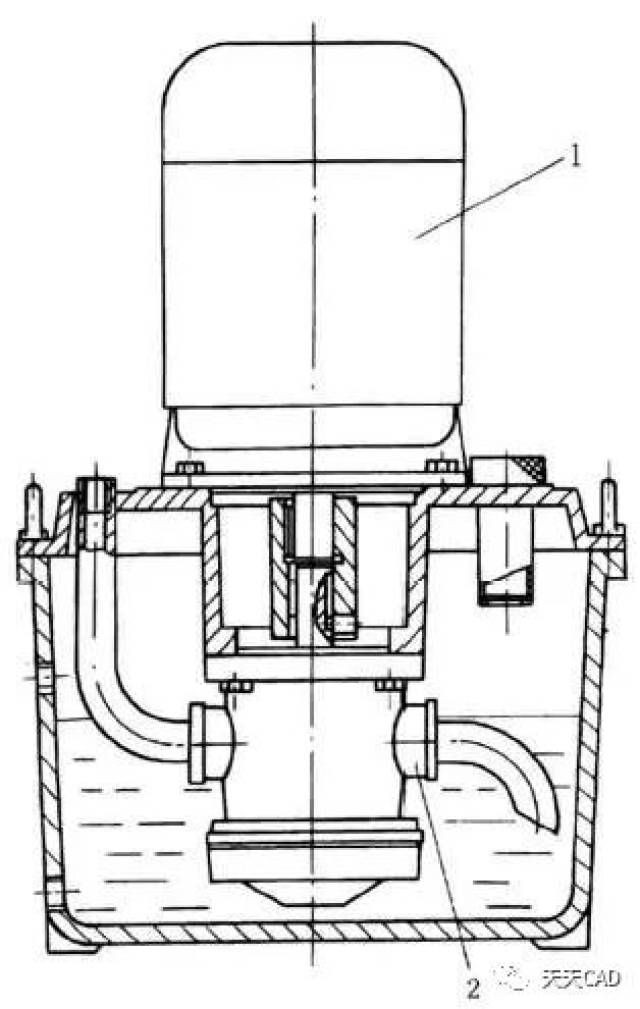
snh210r54u12.1w2三螺杆泵配3kw-4电机外形尺寸图
图片尺寸1646x1391
装配图中的特殊表达方法
图片尺寸554x374
电机正反转原理图cad版本
图片尺寸760x560
星三角降压启动电路图通过改变电机绕组的接法达到降压启动的目的
图片尺寸600x422
电机的11个电路原理图!
图片尺寸549x408
触点接通,y0的线圈"得电"并自保持,使km1的线圈通电,电机开始正转运行
图片尺寸403x366
电机控制线路图大全赶紧收藏
图片尺寸266x480
怎样用cad绘制漂亮电气图
图片尺寸600x401
motorcad宝马i3驱动电机详解
图片尺寸1080x534
宁德鹏康电机有限公司钢结构厂房cad
图片尺寸760x452
motorcad宝马i3驱动电机详解
图片尺寸560x501
鹏康电机有限公司钢结构厂房施工图(cad,7张)
图片尺寸579x484
高低配零件在细节上有区别,便于操作人员区分及后续装配.
图片尺寸568x404
硬件组任务与要求:【基础项】①拥有ad,cadence,kicad,立创eda等任何
图片尺寸1080x810
ibe33问cad技巧问题67个电气图形及315个阀门cad符号图画法都记住了吗
图片尺寸587x440
中国零配件的崛起 | 2024中国展零配件篇|车架|轮胎|电机|轮组|碟刹
图片尺寸660x990
背景提升普林斯顿大学机电一体化技术研究专题
图片尺寸1080x1517