电梯井道图

电梯- 热门商品专区
图片尺寸1079x1146
厂家直销广东广菱品牌载货电梯汽车电梯,货梯(全国免保1年)
图片尺寸531x787
家用电梯井道现场测量之前的准备工作
图片尺寸1999x1680
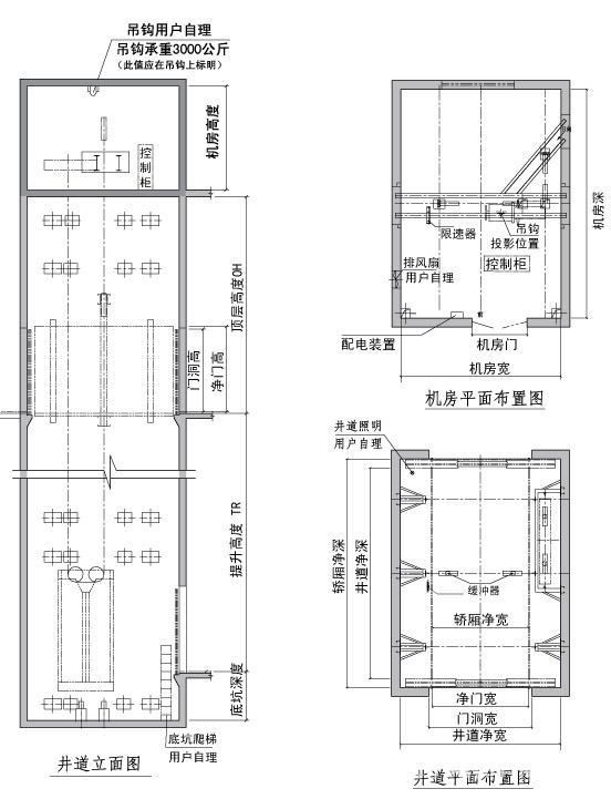
无机房电梯图纸
图片尺寸1440x1020
别墅家用电梯井道外观图解#电梯装修效果图 - 抖音
图片尺寸1073x1538
电梯- 热门商品专区
图片尺寸1080x1312
家用电梯井道土建图
图片尺寸1237x1700
电梯- 热门商品专区
图片尺寸1079x1186
楼道间1㎡左右空间,怎样设计一部小尺寸大容量的家用小电梯?
图片尺寸600x450
无锡南门首府4层4站土建井道家用别墅电梯样品间案例
图片尺寸600x450
侧对重隔断式别墅钢带电梯
图片尺寸650x660
求1600kg无机房医用电梯井道布置图
图片尺寸700x750
电梯井道尺寸示意图pdf格式
图片尺寸700x439
一平米超小井道空间可以装哪种小型家用别墅电梯?
图片尺寸640x811
液压电梯和曳引电梯有什么区别
图片尺寸521x782
综合楼电梯井道
图片尺寸552x721
电梯井道的基础知识
图片尺寸561x441
如何以最小的井道尺寸定制满足常规轮椅使用的别墅电梯
图片尺寸640x711
一平米超小井道空间可以装哪种小型家用别墅电梯?
图片尺寸631x760
一种井道双链式家用电梯
图片尺寸1310x2699