画舫斋平面图

曲径通幽画舫斋
图片尺寸900x1323
北海画舫斋史考
图片尺寸720x1011
补游北海公园园中园画舫斋
图片尺寸656x1000
手绘地图-水榭戏台
图片尺寸1280x1920
4-画舫斋平面图
图片尺寸650x1369
小画舫斋简笔画 北海画舫斋平面图
图片尺寸450x703
北海公园内园中园—风荷静影画舫斋
图片尺寸1824x3648
颜料烩饭
图片尺寸480x480
全川河鲜私房菜
图片尺寸4200x2970
清末茶园戏院的平面图示意
图片尺寸600x990
中国古典园林建筑——画舫斋,这样的建筑应该只有在江南才能见得着吧?
图片尺寸960x1280
徜徉在艺术中偷得浮生半日闲2020年7月国内展讯
图片尺寸600x867
但又不是完全的对称,富有变化,东边凸出的绛雪轩与西边凹字形的养性斋
图片尺寸960x540
这里是北京之北海公园内刚刚开放一个月的画舫斋
图片尺寸640x384
静心斋立体图△ 静心斋平面图园内的建筑其实并不多,镜清堂,韵琴斋
图片尺寸1080x944
水绘园平面(不知出处).东侧水明楼廊轩约长42米,宽5米.
图片尺寸600x682
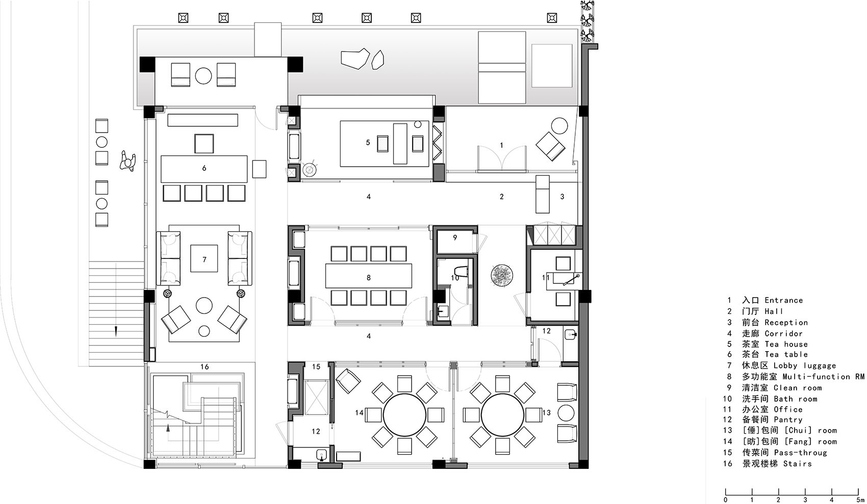
青则倾城|新中式食肆,尽显江南古韵!
图片尺寸1700x989
古建:驶向东方的怡园画舫斋
图片尺寸410x600
来看看北京经典园林平面图吧
图片尺寸1080x897
南北方经典中国园林平面图赏析
图片尺寸760x887