病床电梯尺寸

便宜的高安全性医院电梯医疗床电梯尺寸
图片尺寸750x845
病床电梯
图片尺寸750x1891
医用电梯
图片尺寸3508x2480
医院电梯的布局设计需要注意的事项
图片尺寸750x621
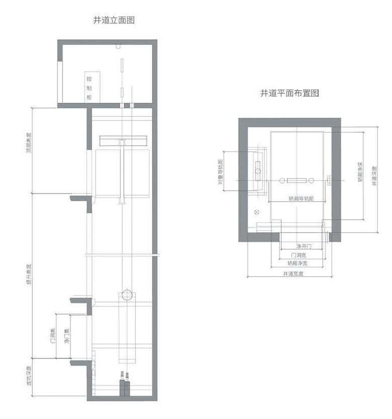
电梯尺寸参考
图片尺寸3489x1925
直供 担架电梯 病床电梯 客货两用病床电梯
图片尺寸779x831
物理科普医院电梯门为什么总是单侧开
图片尺寸674x323
别墅电梯尺寸标准是多少
图片尺寸597x486
图5 Ⅰ类——住宅电梯 尺寸单位为
图片尺寸682x520
电梯尺寸规格
图片尺寸500x450
富士电梯自动扶梯
图片尺寸942x699
医用电梯
图片尺寸650x725
山东医院电梯-山东孝运医用电梯:安全舒适厂家定制
图片尺寸623x800
养老院楼梯间与电梯间设计要点
图片尺寸3447x3567
世道护理床 家用医疗床瘫痪病人多功能医用病床电动折叠床可升降.
图片尺寸790x889
2-gb/t 7025 《电梯主参数及轿厢,井道机房形式与尺寸》八,轿厢通风
图片尺寸1080x692
专业解读 / 设计师 阿帕狮龙电梯官方网站【官网】
图片尺寸1000x1300
电梯土建尺寸表
图片尺寸1076x647
的乘客电梯净深2000mm;载重1000kg,井道尺寸不小于净宽2150mm×净
图片尺寸518x258
电动五功能医用病床护理床中控刹车注塑床头
图片尺寸556x705