皮带机安装图

皮带输送机
图片尺寸527x231
焦作皮带机安装现场
图片尺寸500x666
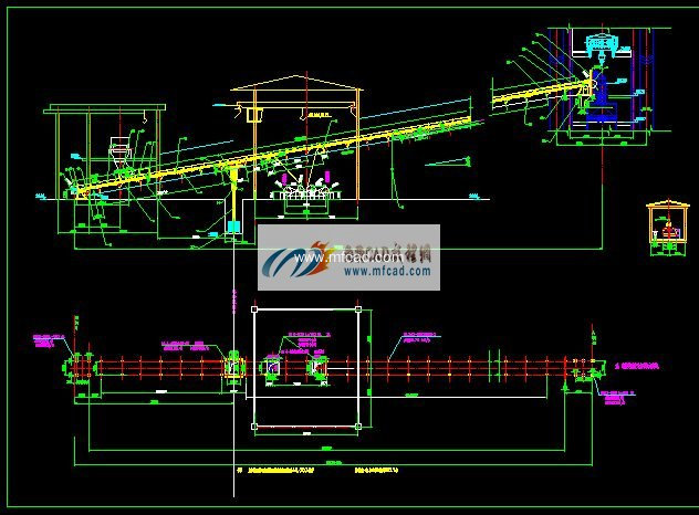
b1600x32702m皮带机安装图
图片尺寸820x588
皮带输送机安装的详细步骤及注意事项想自己安装的看过来
图片尺寸554x369
800皮带机安装图
图片尺寸912x640
图1皮带机安装示意图
图片尺寸1312x424
煤矿井下皮带机安装图
图片尺寸1123x341
即将安装完毕的大倾角皮带输送机现场
图片尺寸900x1200
固定式皮带机丨固定式输送机丨固定带式输送机
图片尺寸800x496
大倾角皮带输送机安装现场
图片尺寸500x745
信钢皮带机安装现场
图片尺寸1600x1200
b650 40度皮带机cad图纸
图片尺寸1200x800
皮带输送机
图片尺寸545x350
上料皮带机安装图
图片尺寸632x466
江苏常州污泥处理系统皮带输送机安装现场
图片尺寸940x583
伸缩式皮带机安装标准
图片尺寸675x324
聚氨酯马丁皮带机清扫器聚氨酯清洁系统
图片尺寸710x452
攀钢集团重庆钛业皮带机安装工程
图片尺寸500x888
td75皮带输送机安装要点
图片尺寸800x500
堆取料机皮带机设计
图片尺寸660x466