砌体转角筋

转角墙外侧水平筋
图片尺寸2048x1536
砌体墙转角处钢筋节点怎么设置
图片尺寸784x340
顶板加固材料_注浆顶板加固材料_矿用顶板加固材料
图片尺寸800x320
砌体拉墙筋设置规范是什么_闪电家修网
图片尺寸615x455![[分享]砌体工程工艺标准化](https://i.ecywang.com/upload/1/img2.baidu.com/it/u=238945360,754121189&fm=253&fmt=auto&app=138&f=JPEG?w=292&h=480)
[分享]砌体工程工艺标准化
图片尺寸308x506
地下室外墙转角处钢筋构造错误
图片尺寸3648x2736
看看我家的师傅是如何做到的
图片尺寸900x1200
转角墙拉结筋内外墙拉结筋3) 上下皮砌块竖向灰缝应错开,错开长度宜为
图片尺寸640x840
是一个转角柱,水平筋深入长度足够吗?要不要伸到柱边?
图片尺寸750x563
梅花丁转角砌法,整体性好,用三一砌法施工_哔哩哔哩 (゜-゜)つロ 干杯
图片尺寸1152x720
图一,图二植筋,也叫植墙筋,拉筋,在新砌筑墙和原墙连接时,在原墙内
图片尺寸640x330
砌体拉结筋及构造柱箍筋设置有哪些质量问题 应如何预防
图片尺寸735x645
图文详解马牙槎的作用与配筋
图片尺寸493x368
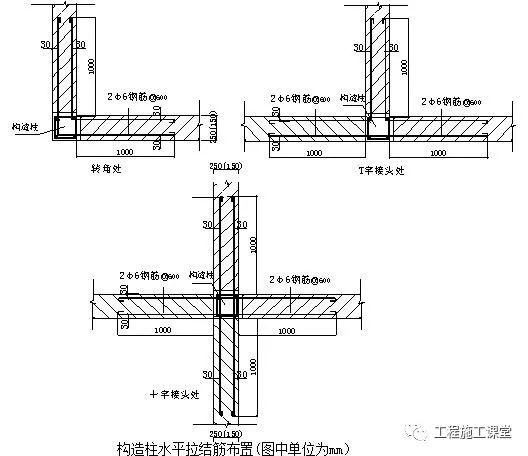
砌体结构中墙体中的拉结筋是怎么设置的?
图片尺寸450x286
砌墙工艺让新旧墙体热恋持久同心一体
图片尺寸1280x960
最全的建筑工程施工工艺ppt讲义(包含土方,基础,砌体,钢筋混凝土,钢
图片尺寸669x441
自建房不知道这些钢筋知识怎么行
图片尺寸640x480
(三层以上卫生间≤900mm时门洞口设置150×150mm砼门抱框,配筋为2Φ12
图片尺寸528x456
【无筋扩展基础】01020101 砖砌体检验批质量验收记录
图片尺寸434x356![[分享]砌体转角处砌体留槎资料下载](https://i.ecywang.com/upload/1/img0.baidu.com/it/u=2070874046,3652961879&fm=253&fmt=auto&app=138&f=JPEG?w=470&h=579)
[分享]砌体转角处砌体留槎资料下载
图片尺寸470x579