窨井盖结构

结合独特的机械结构和压电陶瓷充电技术,使系统在恶劣环境下能准确
图片尺寸802x646
不锈钢铺装井盖大样图
图片尺寸4096x2894
球墨铸铁井盖
图片尺寸550x308
一种环保防腐防渗承重型井盖的制作方法
图片尺寸1000x643
一种便于开合封边的球墨铸铁井盖
图片尺寸1601x1427
插销装置包含插销座,滑孔,螺栓,插销,插销孔和插销柄,井盖为空心结构
图片尺寸1553x1621
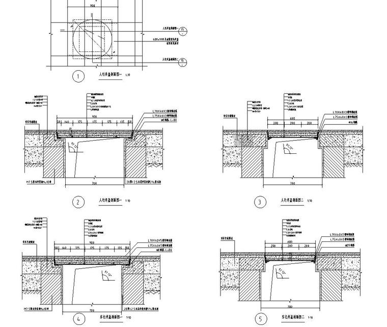
2018年不锈钢无边框装饰井盖构造详图
图片尺寸760x642
一种检查井井盖的刚性安装结构的制作方法
图片尺寸587x355
钢纤维混凝土检查井盖jc889-2001
图片尺寸1200x1745
一种防沉降五防井盖的制作方法
图片尺寸1000x634
一种防盗井盖的制作方法
图片尺寸959x1000
井盖做法详图
图片尺寸820x570
一种市政工程用排水井盖的制作方法
图片尺寸444x273
双层井盖做法详图
图片尺寸671x638
明确井盖及基座承载等级,检查井盖板预埋深度,井盖材料,基座结构设计
图片尺寸857x414![[分享]密闭井盖图集资料免费下载](https://i.ecywang.com/upload/1/img0.baidu.com/it/u=490167326,992939637&fm=253&fmt=auto&app=138&f=JPEG?w=560&h=494)
[分享]密闭井盖图集资料免费下载
图片尺寸560x494
一种下水道内检修用井盖限位结构的制作方法
图片尺寸1000x742
园林给排水标准构造图集|绿化地装饰井盖
图片尺寸760x500
cn203080555u_一种警示井盖失效
图片尺寸1000x951
路面装饰井盖做法(双井盖)
图片尺寸700x489