箱变尺寸

箱变尺寸表
图片尺寸539x343
不同箱变的产品尺寸及相应参数
图片尺寸800x1000
诺亚电器500kva箱式变压器预装式20kv美式箱式变电站厂家定制
图片尺寸790x723
【630kva箱变 zgs11-12户外箱式变电站,组合式变压
图片尺寸776x683
箱变箱式变电站外形尺寸规格说明
图片尺寸920x1302
zgs□系列综合型外形尺寸
图片尺寸750x688
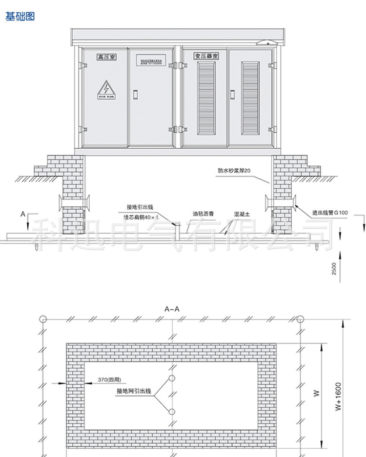
低压部分带操作走廊的箱变外形尺寸及平面布置组合基础安装示意图安装
图片尺寸904x472
xbw系列箱式变电站
图片尺寸1072x1407
外形尺寸及低压标准配置
图片尺寸670x400
4-500kva美式箱变】品牌_生产供应商厂家_今日行情
图片尺寸640x451
售后便捷提供欧式ybw12户外预装式箱式变电站组合式箱变
图片尺寸750x937
箱变容量与母线规格对照表改
图片尺寸1204x778
zgs11-10/0.4kv美式箱变美变箱式变电站路灯箱变10kv12kv
图片尺寸980x355
10kv箱式变电站主接线图2进4出
图片尺寸680x391
10kv级组合式变压器(美式箱变)外形尺寸图
图片尺寸680x234
【630kva箱变 zgs11-12户外箱式变电站,组合式变压
图片尺寸775x764
定制加工大容量欧式箱式变电站 美式箱式变压器 干式油浸式变压器
图片尺寸790x899
ybw-160k预装式箱式变电站 欧式箱变 组合型成套箱
图片尺寸1920x1302
箱体 常用颜色:深绿色 保护等级:ip34 普通型常规外形尺寸
图片尺寸440x440
六,变压器容量与外型尺寸配合表
图片尺寸649x372