紫竹半岛规划

上海市闵行区紫竹半岛景色美,位置好,但功能定位却并不理想
图片尺寸640x1115
上海紫竹高新区总体规划的最后区域:增加大量公共设施空间
图片尺寸1875x1484
一线江景盘兰香湖壹号紫竹半岛滨江豪宅重磅上线
图片尺寸500x321
紫竹半岛 规划图
图片尺寸712x1024
从上面的紫竹科技园规划图可以看出,紫竹半岛将会拥有直达的 15 号线
图片尺寸1080x810
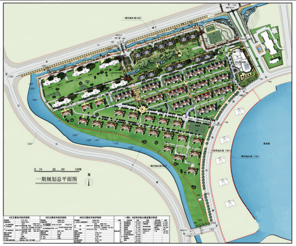
紫竹半岛本期开盘片区 整体规划图
图片尺寸950x652
上海市闵行区紫竹半岛景色美,位置好,但功能定位却并不理想
图片尺寸640x484
上海市闵行区紫竹半岛景色美,位置好,但功能定位却并不理想
图片尺寸586x426
上海市闵行区紫竹半岛景色美,位置好,但功能定位却并不理想
图片尺寸640x1084
紫竹半岛
图片尺寸750x420
闵行紫竹半岛拿证,均价4.6万!附最全一房一价
图片尺寸1280x878
紫竹半岛小区规划兰香湖年内开建 将成为闵行第一湖
图片尺寸500x282
紫竹半岛计划开挖600亩钥匙形兰香湖
图片尺寸602x398
紫竹半岛花园
图片尺寸1000x830
紫竹半岛位于高新区东南角,规划用地324.
图片尺寸806x606
唯有紫竹最似硅谷 紫竹半岛零距离科创园区享红利
图片尺寸565x326
上海紫竹科学园区的交通条件
图片尺寸585x426
让之前的那张规划图所有人都知道整个紫竹园区的规划发
图片尺寸1080x723
热点评述紫竹高新区
图片尺寸489x370
唯有紫竹最似硅谷——紫竹半岛零距离科创园区享红利
图片尺寸550x431