绍兴玺园户型图

玺园,玺园4室2厅169㎡户型图,朝向-绍兴凤凰网房产
图片尺寸704x1280
玺园,玺园4室2厅128㎡户型图,朝向-绍兴凤凰网房产
图片尺寸1080x1966
大亚第一城·玺园户型图,大亚第一城·玺园小区实景图,实拍内外景图片
图片尺寸900x748
阳光好,阳光城碧桂园玺园二手房,650万,4室2厅,3卫,200平米-绍兴安居
图片尺寸1170x545
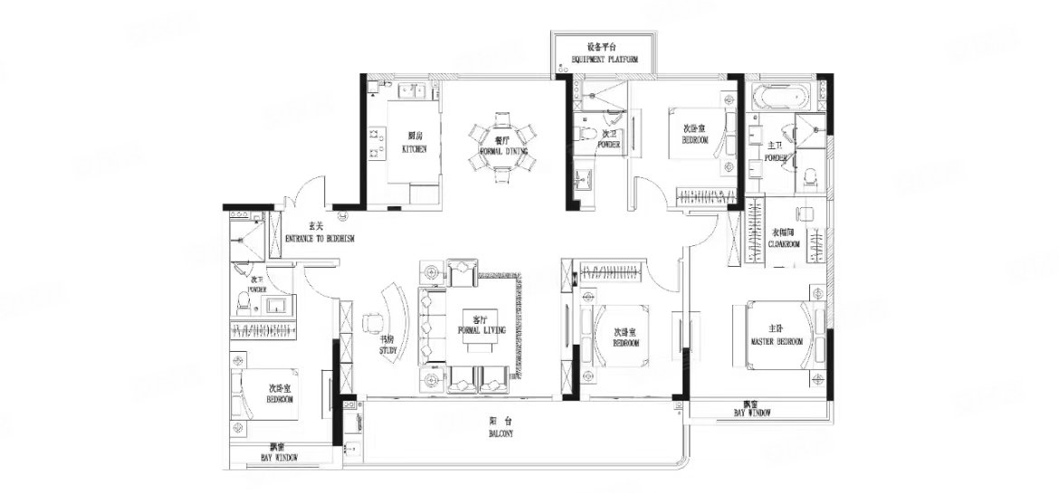
阳光城碧桂园玺园户型图
图片尺寸2400x1800
2020年度高端入围丨绍兴玺园|户型|别墅区|阳光城_网易订阅
图片尺寸571x700
玺园: 玺园 b1户型 127㎡ 二房两厅两卫 户型图
图片尺寸695x1024
绍兴星朗玺园房源|户型图|小区车位|交通地址详情分析(链家网)
图片尺寸533x400
玺园户型图
图片尺寸500x375
户型鉴赏
图片尺寸750x1000
绍兴越城迪荡阳光城碧桂园玺园迪荡玺园4室4900一个月包物业精装修
图片尺寸600x450
玺园户型图
图片尺寸500x400
玺园81.50㎡c户型 两室两厅一厨一卫 81.5平米户型2室2厅1卫
图片尺寸800x800
玺园k户型面积:86.05m平米
图片尺寸800x727
建发玺园户型图 - 珠海房掌柜
图片尺寸3615x2434
阳光城碧桂园玺园_绍兴阳光城碧桂园玺园楼盘详情(绍兴链家新房)
图片尺寸690x517
北京金砖城玺园3室2厅1厨2卫信息_3室2厅1厨2卫128m05-北京手机
图片尺寸960x1280
南昌玺园_楼盘房价_户型详情_周边配套-南昌楼盘网
图片尺寸500x480
【玺园三室两厅两卫139㎡精装公馆户型图】
图片尺寸495x455
阳光城碧桂园玺园户型图
图片尺寸2400x1800