行政套房平面

凯悦行政套房 (regency executive suite)
图片尺寸2048x1228
一房行政套房
图片尺寸440x246
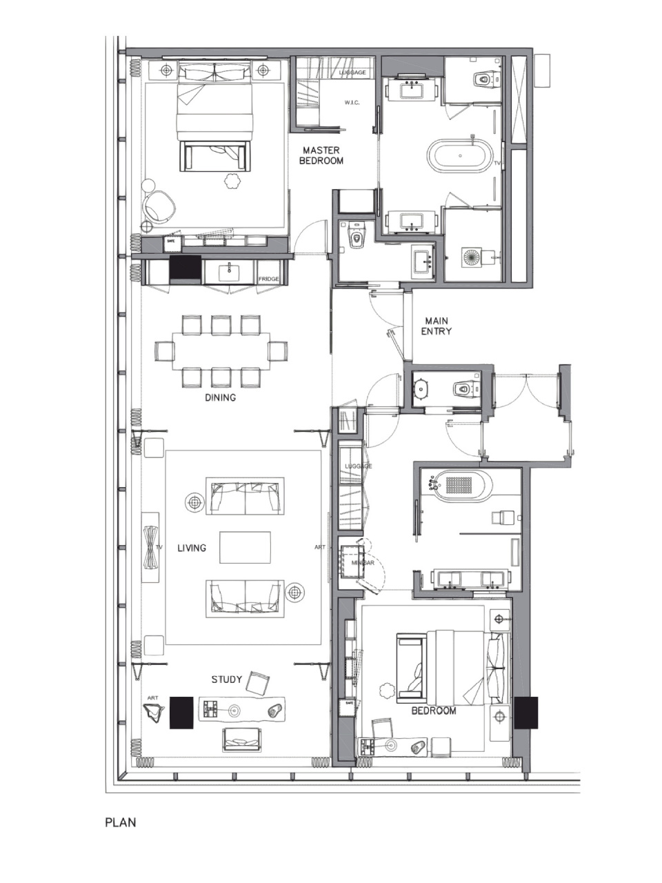
杭州柏悦酒店行政套房平面丨yabu
图片尺寸960x1280
两房行政套房
图片尺寸440x246
内容简介 行政套房设计图 包括:平面图,尺寸图,地材图,插座图,天花
图片尺寸560x420
厂家定制国际星级酒店套房套家具 行政套房宾馆标间实木家具
图片尺寸1919x1586
酒店行政豪华套房设计
图片尺寸1080x900
行政套房 ab
图片尺寸800x1166
行政套房平面
图片尺寸900x597
内容简介 时尚行政套房室内装修图(7张) 包括:封面,平面图,顶面图
图片尺寸560x420
海景行政套房
图片尺寸6001x2880![[重庆]现代简约酒店行政套房室内设计施工图](https://i.ecywang.com/upload/1/img2.baidu.com/it/u=4185424208,2106826113&fm=253&fmt=auto&app=138&f=JPEG?w=500&h=375)
[重庆]现代简约酒店行政套房室内设计施工图
图片尺寸560x420
总统套房平面设计图
图片尺寸1504x1228
天津君隆威斯汀酒店(商务型)行政套房平面图
图片尺寸858x635![[资料][安徽]某酒店时尚 行政套房装修图(含效果)](https://i.ecywang.com/upload/1/img1.baidu.com/it/u=3635553774,3509722108&fm=253&fmt=auto&app=138&f=JPEG?w=560&h=420)
[资料][安徽]某酒店时尚 行政套房装修图(含效果)
图片尺寸560x420
按照片画一套房的平面图-70号任务-4号作品-天下威客
图片尺寸1600x1280
雅布
图片尺寸600x421
行政套房 (executive suite)
图片尺寸2048x1536
酒店行政套房平面图.jpg
图片尺寸800x702
行政豪华客房平面图.jpg
图片尺寸781x800