设计图纸八级

八级建造师画的图纸,#布局图平面图 @高尚熏烧
图片尺寸720x1280
八层8000平米中学综合教学楼设计建筑图结构图施工组织
图片尺寸1905x982
请问开间8米 进深15米农村自建房如何设计?
图片尺寸2304x3037
🏠8x8米现代自建房设计
图片尺寸1080x1409
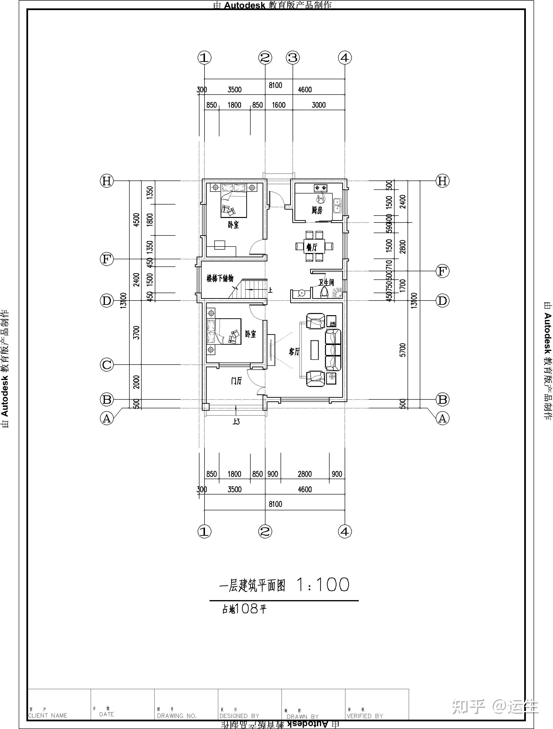
自建房别墅8米x13米经典户型#布局图平面图 #自建房图纸
图片尺寸827x1472
5孔夹具设计
图片尺寸1071x763
自建房别墅设计
图片尺寸1080x1412
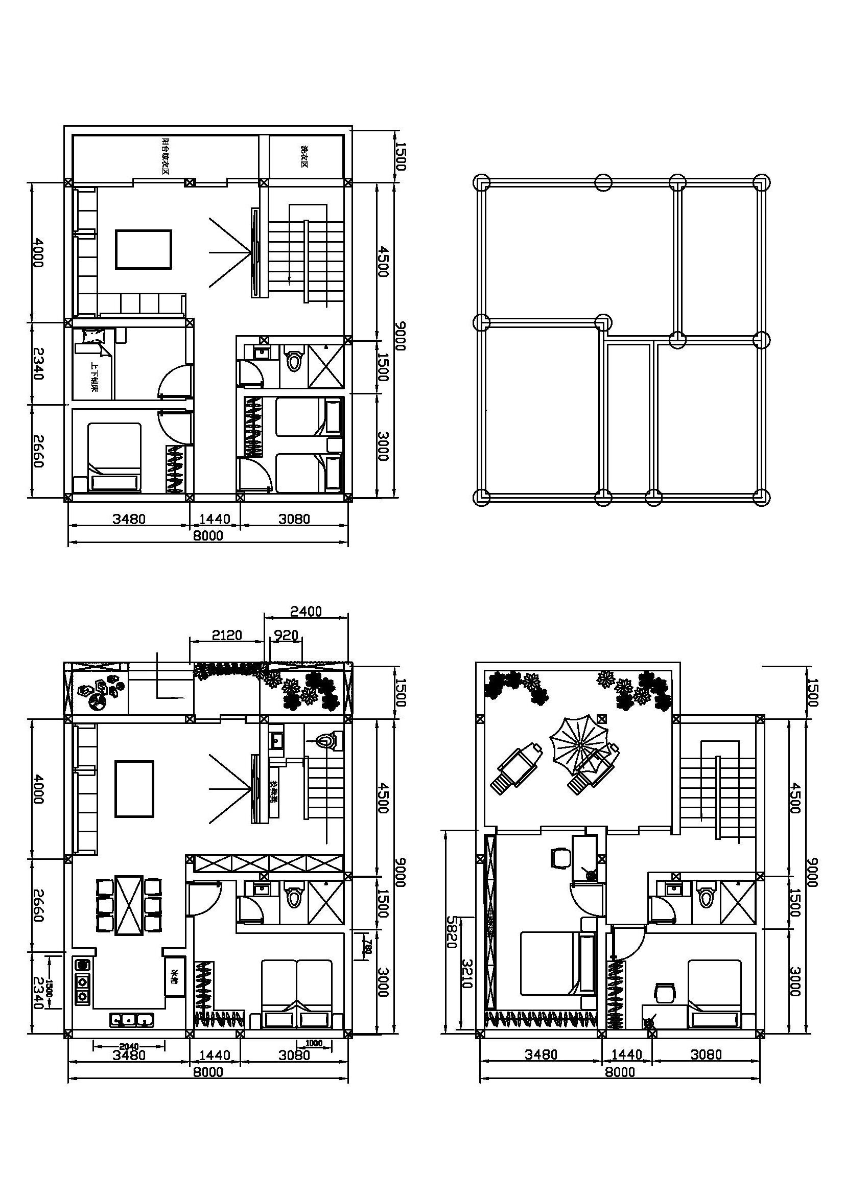
第4篇:定稿,自建房8✕9,面宽8米深度9米
图片尺寸1654x2339
面宽8米,进深15米,可建二层三层.面宽小,两侧有邻居不能开
图片尺寸1440x2036
🏠8x12米三层住宅设计📐
图片尺寸1080x1498
广东肇庆8.5米面宽欧式别墅设计图
图片尺寸1175x1508
7米x进深8.5米设计平面图.有想看图纸的朋友们吗
图片尺寸1440x2038
施工图|户型设计
图片尺寸1920x1358
请问开间8米进深15米农村自建房如何设计
图片尺寸2304x3037
🏠8米面宽三层楼自建房设计
图片尺寸1080x1061
开间8米进深12米三层两开间自建房.#别墅设计 #别墅图纸
图片尺寸900x1200
自建房图纸平面图
图片尺寸1918x1780
甲级设计院蓝图盖章图纸自建房报批图纸是一个比较复杂且需要根据
图片尺寸1290x2796
🏡8x12米现代别墅设计
图片尺寸1080x1409
农村自建别墅面宽8米进深12米户型图,自建房图纸可盖章报建
图片尺寸1080x1920