酒庄平面设计图

飞凤视觉——私人酒庄效果图表现 - 效果图交流区-建e室内设计网
图片尺寸3300x1719
87㎡质感轻奢小酒馆 roomoo - 马蹄室内设计网
图片尺寸1461x1135
平面布置方案
图片尺寸2913x2116
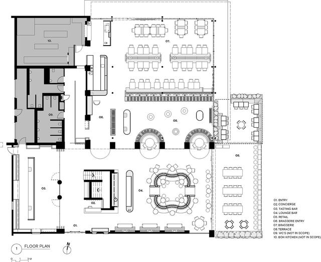
酒庄平面设计图
图片尺寸1100x771
庄园设计
图片尺寸1080x606
浙江-瑞义耒酒庄-红酒酒庄 - 商业空间 - 谌志强设计作品案例
图片尺寸561x800
酒庄
图片尺寸1080x1080
平,立面图:▽空间细节:▽餐厅区:这些设计在向chandon酒庄法式传统
图片尺寸640x523
酒庄会所平面方案
图片尺寸1080x1439
高档红酒会所平面设计图片欣赏
图片尺寸1600x1180
max酒庄|空间|酒店餐饮设计|大鱼品牌_原创作品-站酷(zcool)
图片尺寸1280x972
本案在园林设计上,设计师经过反复多次的实地考察,结合本别墅园区的
图片尺寸1080x1542
甘烹碧麦芽威士忌酿酒厂 / ani design,平面图
图片尺寸1414x1000
武隆禅山酒庄室内设计方案
图片尺寸1280x760![[分享]园林景观施工图设计酒庄资料下载](https://i.ecywang.com/upload/1/img2.baidu.com/it/u=2718673561,374949862&fm=253&fmt=auto&app=138&f=JPEG?w=500&h=353)
[分享]园林景观施工图设计酒庄资料下载
图片尺寸760x537
zingvr国外优秀设计modelier小酒馆获奖作品
图片尺寸1200x686
关键词: 私人酒庄全套施工图混搭风格酒庄设计酒窖
图片尺寸760x570
比较精致的一家酒庄装修设计施工图含效果图
图片尺寸610x432
环球视野丨宋设计61唐顿庄园61一揽芳华
图片尺寸1800x1260
葡萄庄园酒庄设计高技派福斯特
图片尺寸1080x1439