钢箱梁构造图

城市立交钢箱梁工程施工方案(425页)
图片尺寸760x425
主桥钢箱梁结构示意图
图片尺寸560x292![[分享]钢箱梁构造设计:加劲肋形式和功能](https://i.ecywang.com/upload/1/img1.baidu.com/it/u=1068231714,1984007733&fm=253&fmt=auto&app=138&f=JPEG?w=622&h=353)
[分享]钢箱梁构造设计:加劲肋形式和功能
图片尺寸655x372
钢箱梁构造设计.png
图片尺寸631x473
预应力箱梁构造图纸
图片尺寸506x429
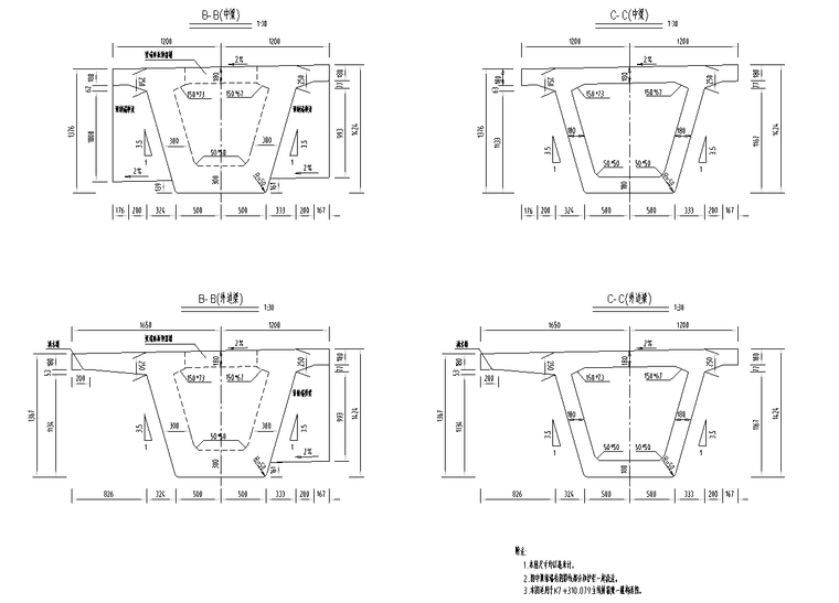
钢箱梁断面构造图.png
图片尺寸760x619
一种钢箱梁的制作方法
图片尺寸443x304![[分享]钢箱梁桥构造与受力超全解读,收藏学习](https://i.ecywang.com/upload/1/img1.baidu.com/it/u=3657807296,1735706879&fm=253&fmt=auto&app=138&f=JPG?w=760&h=358)
[分享]钢箱梁桥构造与受力超全解读,收藏学习
图片尺寸760x358
钢箱梁桥总体设计及主梁设计满满的都是经验
图片尺寸806x467
碳板加固 桥梁预应力碳板加固施工纪实
图片尺寸640x374
钢箱梁构造
图片尺寸560x362
钢箱梁ppt
图片尺寸1080x810
箱梁一般构造
图片尺寸560x309
箱梁一般构造
图片尺寸560x403
跨径20m装配式预应力箱形连续梁桥上部构造87张(梁高1.2m)
图片尺寸560x380
现浇箱梁支架施工方案(共87页,结构图多附现场照片)
图片尺寸600x450
彩针型独塔斜拉桥160m长钢箱梁加工方案
图片尺寸560x357
箱梁是什么形状的?请快快给答案
图片尺寸704x405
小箱梁一般构造图1.png
图片尺寸760x547
箱梁一般构造图cad图纸
图片尺寸537x651