镜柜节点图

一日一节点07洗手台镜柜剖面节点
图片尺寸600x799
一种浴室镜柜的制作方法
图片尺寸668x1000
一种镜柜的制作方法
图片尺寸1000x771
镜柜的制作方法
图片尺寸766x1000
现代进口中式pvc吊镜柜浴室柜单孔
图片尺寸750x1326
卫生间手盆柜镜柜竖剖示意图
图片尺寸640x755
带有摄像头的镜柜的制作方法
图片尺寸1000x808
广东佛山不锈钢镜箱 镜柜 浴室镜柜 卫生间置物柜 现代简约镜柜004
图片尺寸750x1110
柜洗脸盆柜洗漱台洗手盆镜柜款80公分两门两抽工业灰普通镜柜不带灯
图片尺寸790x910
0.9米带置物架式镜柜现代简约浴室柜1600
图片尺寸750x887
不锈钢镜柜 卫浴镜箱 现代简约镜柜 卫生间镜柜006
图片尺寸750x1028
某洗手台镜子cad全套构造施工
图片尺寸610x861
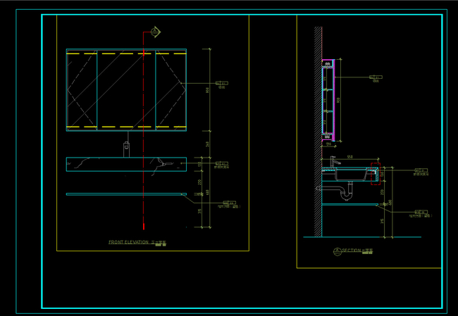
藏灯镜面柜洗手台大样图
图片尺寸650x449
浴室镜柜实木卫生间镜子浴室防水柜置物柜卫浴柜定制镜子
图片尺寸790x429
实木浴室镜柜隐藏式镜柜镜箱简约卫生间洗手间风水镜子带置物架柜波迷
图片尺寸750x1079
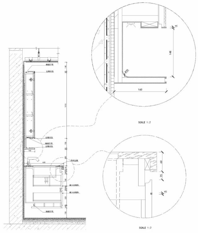
水柜镜柜木作标准深化图施工图下载
图片尺寸1600x1008
思伶菲浴室镜 实木浴室镜柜隐藏式镜柜镜箱简约卫生间隐形风水镜子带
图片尺寸750x1076
不锈钢镜柜 卫生间置物柜 浴室镜柜 现代简约镜箱068
图片尺寸550x800
穿衣镜详图-室内节点详图-筑龙室内设计论坛
图片尺寸600x800
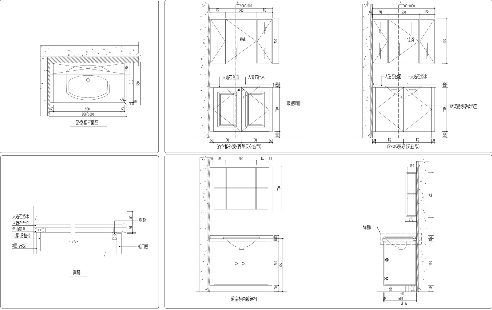
客卫浴室柜节点大样图(三)
图片尺寸1800x1401